Elected Officials
Courts
Departments
Initiatives
Open Government
About
Login / Register
Home
/
Property & Tax Records
/
Property Records
/
Property & Tax Search
/
Parcel Profile
/
Print View
Search for Another Parcel
Parcel Profile
Historical Card
Sketches
Photos
Tax Map
Taxes
Print View
Print This Page
Address: 9959 MITCHELL RD
Parcel: 43014020001700
Parcel Profile
Address
9959 | MITCHELL | RD
Street Status
UNPAVED
School District
UNION CITY AREA SCHOOL
Acreage
0.5928
Classification
R
Land Use Code
SINGLE FAMILY
Legal Description
9959 MITCHELL RD 165 X 156.5
Square Feet
1564
Topo
LEVEL | ROLLING
Utility
WELL | SEPTIC
Zoning
Please contact your municipal zoning officer
Deed Book
0233
Deed Page
1764
2026 Tax Values
Land Value / Taxable
17,200 / 17,200.00
Building Value / Taxable
41,170 / 41,170.00
Total Value / Taxable
58,370 / 58,370.00
Clean & Green
Inactive
Homestead Status
Active
Farmstead Status
Inactive
Lerta Amount
0
Lerta Expiration Year
0
Residential Data
Card 1
Style
OLD STYLE
Basement
FULL
Year Built
1880
Exterior Wall
COMPOSITION
Total Living Area
1564
Full Baths
1
Half Baths
1
Fuel Type
OIL
Heating
NON CENTRAL
Heating System
FORCED AIR
Stories
1.5
Total Bedrooms
4
Total Family Rooms
0
Total Rooms
10
Fireplaces
0
Other Buildings & Yards
No OBY Data Found
Sales History
Sale Date
Type
Price
Book / Page
Other Info
10/7/1992
0
0233 / 1764
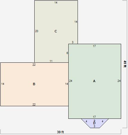
Parcel Sketches
Residential Card 1
A
MAIN
408 square feet
B
UNFIN BSMT BASEMENT UNFINISHED 1S FR ONE STORY FRAME
308 square feet
C
1S FR ONE STORY FRAME 1S FR ONE STORY FRAME
262 square feet
D
FRBAY FRAME BAY
18 square feet
Parcel Images
Please note:
this tab is for informational purposes only and may not show all delinquencies, see the Taxes tab for more accurate delinquent taxes due.