Elected Officials
Courts
Departments
Initiatives
Open Government
About
Login / Register
Home
/
Property & Tax Records
/
Property Records
/
Property & Tax Search
/
Parcel Profile
/
Print View
Search for Another Parcel
Parcel Profile
Historical Card
Sketches
Photos
Tax Map
Taxes
Print View
Print This Page
Address: 10771 CONCORD RD
Parcel: 43017049000401
Parcel Profile
Address
10771 | CONCORD | RD
Street Status
PAVED
School District
UNION CITY AREA SCHOOL
Acreage
1.4550
Classification
R
Land Use Code
SINGLE FAMILY
Legal Description
10771 CONCORD RD 1.455 AC NET | 1.623 AC GROSS
Square Feet
1949
Topo
ROLLING
Utility
WELL | SEPTIC
Zoning
Please contact your municipal zoning officer
Deed Book
2023
Deed Page
020295
2026 Tax Values
Land Value / Taxable
19,100 / 19,100.00
Building Value / Taxable
61,250 / 61,250.00
Total Value / Taxable
80,350 / 80,350.00
Clean & Green
Inactive
Homestead Status
Inactive
Farmstead Status
Inactive
Lerta Amount
0
Lerta Expiration Year
0
Residential Data
Card 1
Style
OLD STYLE
Basement
PART
Year Built
1900
Exterior Wall
ALUMINUM/VINYL
Total Living Area
1949
Full Baths
1
Half Baths
0
Fuel Type
PROPANE
Heating
CENTRAL
Heating System
FORCED AIR
Stories
2.0
Total Bedrooms
3
Total Family Rooms
0
Total Rooms
7
Fireplaces
0
Other Buildings & Yards
Description
Built
Width
Length
Area
FRAME UTILITY SHED
1950
12
16
192
CARPORT
2006
20
40
800
Sales History
Sale Date
Type
Price
Book / Page
Other Info
11/21/2023
LAND & BUILDING
0
2023 / 020295
SPECIAL WARRANTY DEED
11/21/2023
LAND & BUILDING
0
2023 / 020294
SPECIAL WARRANTY DEED
12/21/2022
LAND
0
2022 / 026567
SPECIAL WARRANTY DEED
7/9/1969
0
1010 / 0176
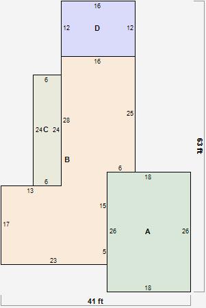
Parcel Sketches
Residential Card 1
A
MAIN
468 square feet
B
1S FR ONE STORY FRAME
821 square feet
C
OFP OPEN FRAME PORCH
144 square feet
D
1S FR ONE STORY FRAME
192 square feet
Parcel Images
Please note:
this tab is for informational purposes only and may not show all delinquencies, see the Taxes tab for more accurate delinquent taxes due.