Elected Officials
Courts
Departments
Initiatives
Open Government
About
Login / Register
Home
/
Property & Tax Records
/
Property Records
/
Property & Tax Search
/
Parcel Profile
/
Print View
Search for Another Parcel
Parcel Profile
Historical Card
Sketches
Photos
Tax Map
Taxes
Print View
Print This Page
Address: 12921 HALF MOON RD
Parcel: 44011014001300
Parcel Profile
Address
12921 | HALF MOON | RD
Street Status
UNPAVED
School District
WATTSBURG SCHOOL
Acreage
72.8800
Classification
F
Land Use Code
20 - 79.99 ACRES
Legal Description
12921 HALF MOON RD 72.88 AC CAL
Square Feet
1584
Topo
LEVEL
Utility
GAS | WELL | SEPTIC
Zoning
Please contact your municipal zoning officer
Deed Book
2014
Deed Page
018892
2026 Tax Values
Land Value / Taxable
104,000 / 104,000.00
Building Value / Taxable
45,400 / 45,400.00
Total Value / Taxable
149,400 / 149,400.00
Clean & Green
Inactive
Homestead Status
Inactive
Farmstead Status
Inactive
Lerta Amount
0
Lerta Expiration Year
0
Residential Data
Card 1
Style
CONVENTIONAL
Basement
FULL
Year Built
1917
Exterior Wall
ALUMINUM/VINYL
Total Living Area
1584
Full Baths
1
Half Baths
0
Fuel Type
OIL
Heating
NONE
Heating System
FORCED AIR
Stories
2.0
Total Bedrooms
3
Total Family Rooms
0
Total Rooms
7
Fireplaces
0
Other Buildings & Yards
Description
Built
Width
Length
Area
FLAT BARN
1920
40
50
2000
FLAT BARN
1980
0
0
2540
Sales History
Sale Date
Type
Price
Book / Page
Other Info
9/8/2014
LAND & BUILDING
0
2014 / 018892
SPECIAL WARRANTY DEED
2/11/2002
LAND & BUILDING
175000
853 / 101
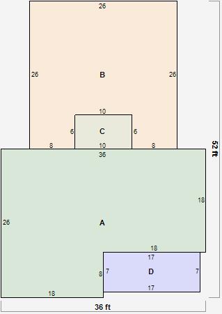
Parcel Sketches
Residential Card 1
A
MAIN
792 square feet
B
FR GR FRAME GARAGE
616 square feet
C
EFP ENCL FRAME PORCH
60 square feet
D
EFP ENCL FRAME PORCH
119 square feet
Parcel Images
Please note:
this tab is for informational purposes only and may not show all delinquencies, see the Taxes tab for more accurate delinquent taxes due.