Elected Officials
Courts
Departments
Initiatives
Open Government
About
Login / Register
Home
/
Property & Tax Records
/
Property Records
/
Property & Tax Search
/
Parcel Profile
/
Print View
Search for Another Parcel
Parcel Profile
Historical Card
Sketches
Photos
Tax Map
Taxes
Print View
Print This Page
Address: 13885 MACEDONIA RD
Parcel: 44012030000300
Parcel Profile
Address
13885 | MACEDONIA | RD
Street Status
UNPAVED
School District
WATTSBURG SCHOOL
Acreage
131.4500
Classification
F
Land Use Code
80 ACRES OR MORE
Legal Description
13885 MACEDONIA RD 132.45 AC
Square Feet
1334
Topo
LEVEL
Utility
WELL | SEPTIC
Zoning
Please contact your municipal zoning officer
Deed Book
1466
Deed Page
0034
2026 Tax Values
Land Value / Taxable
214,800 / 58,500.00
Building Value / Taxable
52,150 / 52,150.00
Total Value / Taxable
266,950 / 110,650.00
Clean & Green
Active
Homestead Status
Active
Farmstead Status
Active
Lerta Amount
0
Lerta Expiration Year
0
Residential Data
Card 1
Style
CAPE
Basement
FULL
Year Built
1900
Exterior Wall
ALUMINUM/VINYL
Total Living Area
1334
Full Baths
1
Half Baths
0
Fuel Type
GAS
Heating
CENTRAL
Heating System
FORCED AIR
Stories
1.0
Total Bedrooms
3
Total Family Rooms
0
Total Rooms
6
Fireplaces
0
Other Buildings & Yards
Description
Built
Width
Length
Area
FLAT BARN
1940
40
100
4000
FLAT BARN ADDITION
1989
40
32
1280
CONCRETE STAVE WITH ROOF
2000
0
0
0
Sales History
Sale Date
Type
Price
Book / Page
Other Info
8/9/1982
0
1466 / 0034
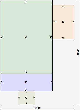
Parcel Sketches
Residential Card 1
A
MAIN
816 square feet
B
EFP ENCL FRAME PORCH
160 square feet
C
OFP OPEN FRAME PORCH
48 square feet
D
1S FR ONE STORY FRAME
192 square feet
Parcel Images
Please note:
this tab is for informational purposes only and may not show all delinquencies, see the Taxes tab for more accurate delinquent taxes due.