Elected Officials
Courts
Departments
Initiatives
Open Government
About
Login / Register
Home
/
Property & Tax Records
/
Property Records
/
Property & Tax Search
/
Parcel Profile
/
Print View
Search for Another Parcel
Parcel Profile
Historical Card
Sketches
Photos
Tax Map
Taxes
Print View
Print This Page
Address: 13491 13493 ROUTE 8
Parcel: 44014026002000
Parcel Profile
Address
13491 | 13493 | ROUTE 8
Street Status
PAVED
School District
WATTSBURG SCHOOL
Acreage
0.9800
Classification
R
Land Use Code
SINGLE FAMILY
Legal Description
13491 13493 ROUTE 8 .9855 AC
Square Feet
1372
Topo
ABOVE STREET
Utility
GAS | WELL | SEPTIC
Zoning
Please contact your municipal zoning officer
Deed Book
2021
Deed Page
007773
2026 Tax Values
Land Value / Taxable
24,600 / 24,600.00
Building Value / Taxable
31,650 / 31,650.00
Total Value / Taxable
56,250 / 56,250.00
Clean & Green
Inactive
Homestead Status
Inactive
Farmstead Status
Inactive
Lerta Amount
0
Lerta Expiration Year
0
Residential Data
Card 1
Style
OLD STYLE
Basement
PART
Year Built
1900
Exterior Wall
ALUMINUM/VINYL
Total Living Area
1372
Full Baths
1
Half Baths
1
Fuel Type
GAS
Heating
CENTRAL
Heating System
FORCED AIR
Stories
2.0
Total Bedrooms
3
Total Family Rooms
0
Total Rooms
7
Fireplaces
0
Other Buildings & Yards
Description
Built
Width
Length
Area
FRAME OR CB DETACHED GARAGE
1940
28
28
784
FRAME UTILITY SHED
1960
20
20
400
Sales History
Sale Date
Type
Price
Book / Page
Other Info
4/1/2021
LAND & BUILDING
20000
2021 / 007773
SPECIAL WARRANTY DEED
8/5/2002
LAND & BUILDING
0
0907 / 2098
SPECIAL WARRANTY DEED
6/4/1999
0
0640 / 1833
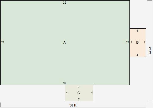
Parcel Sketches
Residential Card 1
A
MAIN
672 square feet
B
MA_PT CONC/MAS PATIO
28 square feet
C
1S FR ONE STORY FRAME
28 square feet
Parcel Images
Please note:
this tab is for informational purposes only and may not show all delinquencies, see the Taxes tab for more accurate delinquent taxes due.