Elected Officials
Courts
Departments
Initiatives
Open Government
About
Login / Register
Home
/
Property & Tax Records
/
Property Records
/
Property & Tax Search
/
Parcel Profile
/
Print View
Search for Another Parcel
Parcel Profile
Historical Card
Sketches
Photos
Tax Map
Taxes
Print View
Print This Page
Address: 9476 SUNSHINE LN
Parcel: 44015038001102
Parcel Profile
Address
9476 | SUNSHINE | LN
Street Status
PAVED
School District
WATTSBURG SCHOOL
Acreage
0.5684
Classification
R
Land Use Code
SINGLE FAMILY
Legal Description
9476 SUNSHINE LN 104.30X242.95
Square Feet
1176
Topo
LEVEL
Utility
GAS | WELL | SEPTIC
Zoning
Please contact your municipal zoning officer
Deed Book
2018
Deed Page
006301
2025 Tax Values
Land Value / Taxable
24,100 / 24,100.00
Building Value / Taxable
57,900 / 57,900.00
Total Value / Taxable
82,000 / 82,000.00
Clean & Green
Inactive
Homestead Status
Inactive
Farmstead Status
Inactive
Lerta Amount
0
Lerta Expiration Year
0
Residential Data
Card 1
Style
CONVENTIONAL
Basement
FULL
Year Built
1900
Exterior Wall
ALUMINUM/VINYL
Total Living Area
1176
Full Baths
1
Half Baths
0
Fuel Type
GAS
Heating
CENTRAL
Heating System
FORCED AIR
Stories
2.0
Total Bedrooms
3
Total Family Rooms
0
Total Rooms
7
Fireplaces
0
Other Buildings & Yards
Description
Built
Width
Length
Area
FRAME OR CB DETACHED GARAGE
1973
24
30
720
Sales History
Sale Date
Type
Price
Book / Page
Other Info
4/6/2018
LAND & BUILDING
65000
2018 / 006301
WARRANTY/SURVIVORSHIP DEED
8/1/1995
LAND & BUILDING
41900
401 / 1421
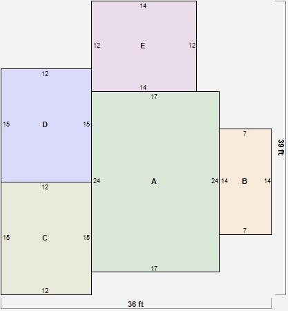
Parcel Sketches
Residential Card 1
A
MAIN
408 square feet
B
EFP ENCL FRAME PORCH
98 square feet
C
1S FR ONE STORY FRAME
180 square feet
D
1S FR ONE STORY FRAME AT UN ATTIC-UNFINISHED
180 square feet
E
EFP ENCL FRAME PORCH
168 square feet
Parcel Images