Elected Officials
Courts
Departments
Initiatives
Open Government
About
Login / Register
Home
/
Property & Tax Records
/
Property Records
/
Property & Tax Search
/
Parcel Profile
/
Print View
Search for Another Parcel
Parcel Profile
Historical Card
Sketches
Photos
Tax Map
Taxes
Print View
Print This Page
Address: 8637 FRITZHILL RD
Parcel: 44016041000300
Parcel Profile
Address
8637 | FRITZHILL | RD
Street Status
SEMI IMPROVED
School District
WATTSBURG SCHOOL
Acreage
18.0000
Classification
F
Land Use Code
10-19.99 ACRES
Legal Description
8637 FRITZHILL RD 18 AC CAL
Square Feet
1604
Topo
ROLLING
Utility
WELL | SEPTIC
Zoning
Please contact your municipal zoning officer
Deed Book
2022
Deed Page
025530
2026 Tax Values
Land Value / Taxable
60,200 / 9,500.00
Building Value / Taxable
63,900 / 63,900.00
Total Value / Taxable
124,100 / 73,400.00
Clean & Green
Active
Homestead Status
Inactive
Farmstead Status
Inactive
Lerta Amount
0
Lerta Expiration Year
0
Residential Data
Card 1
Style
OLD STYLE
Basement
FULL
Year Built
1900
Exterior Wall
ALUMINUM/VINYL
Total Living Area
1604
Full Baths
1
Half Baths
1
Fuel Type
PROPANE
Heating
CENTRAL
Heating System
FORCED AIR
Stories
2.0
Total Bedrooms
2
Total Family Rooms
0
Total Rooms
6
Fireplaces
0
Other Buildings & Yards
Description
Built
Width
Length
Area
FOUR SIDE CLOSED MTL POLE BLDG
1981
30
32
960
Sales History
Sale Date
Type
Price
Book / Page
Other Info
12/6/2022
LAND & BUILDING
178200
2022 / 025530
FIDUCIARY DEED
8/9/2002
LAND & BUILDING
0
0909 / 0514
DEED
12/30/1976
0
1249 / 0192
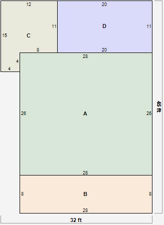
Parcel Sketches
Residential Card 1
A
MAIN
728 square feet
B
OFP OPEN FRAME PORCH
224 square feet
C
1S FR ONE STORY FRAME
148 square feet
D
EFP ENCL FRAME PORCH
220 square feet
Parcel Images
Please note:
this tab is for informational purposes only and may not show all delinquencies, see the Taxes tab for more accurate delinquent taxes due.