Elected Officials
Courts
Departments
Initiatives
Open Government
About
Login / Register
Home
/
Property & Tax Records
/
Property Records
/
Property & Tax Search
/
Parcel Profile
/
Print View
Search for Another Parcel
Parcel Profile
Historical Card
Sketches
Photos
Tax Map
Taxes
Print View
Print This Page
Address: 11452 PHILLIPSVILLE RD
Parcel: 44017021000500
Parcel Profile
Address
11452 | PHILLIPSVILLE | RD
Street Status
PAVED
School District
WATTSBURG SCHOOL
Acreage
0.5343
Classification
R
Land Use Code
SINGLE FAMILY
Legal Description
11452 PHILLIPSVILLE RD 133 X 175
Square Feet
944
Topo
LEVEL
Utility
WELL
Zoning
Please contact your municipal zoning officer
Deed Book
2023
Deed Page
019769
2026 Tax Values
Land Value / Taxable
24,100 / 24,100.00
Building Value / Taxable
39,270 / 39,270.00
Total Value / Taxable
63,370 / 63,370.00
Clean & Green
Inactive
Homestead Status
Inactive
Farmstead Status
Inactive
Lerta Amount
0
Lerta Expiration Year
0
Residential Data
Card 1
Style
CAPE
Basement
FULL
Year Built
1939
Exterior Wall
FRAME
Total Living Area
944
Full Baths
1
Half Baths
0
Fuel Type
GAS
Heating
CENTRAL
Heating System
FORCED AIR
Stories
1.0
Total Bedrooms
3
Total Family Rooms
0
Total Rooms
5
Fireplaces
0
Other Buildings & Yards
Description
Built
Width
Length
Area
FRAME OR CB DETACHED GARAGE
1939
12
24
288
FRAME UTILITY SHED
1939
15
21
315
Sales History
Sale Date
Type
Price
Book / Page
Other Info
11/13/2023
LAND & BUILDING
160000
2023 / 019769
SPECIAL WARRANTY DEED
12/10/2015
LAND & BUILDING
0
2015 / 026942
SPECIAL WARRANTY DEED
1/2/2014
LAND & BUILDING
53050
2014 / 000071
SPECIAL WARRANTY DEED
5/29/1998
LAND & BUILDING
70000
0564 / 0972
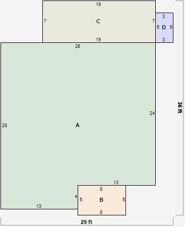
Parcel Sketches
Residential Card 1
A
MAIN
676 square feet
B
OFP OPEN FRAME PORCH
40 square feet
C
UNFIN BSMT BASEMENT UNFINISHED 1S FR ONE STORY FRAME
133 square feet
D
EFP ENCL FRAME PORCH
15 square feet
Parcel Images
Please note:
this tab is for informational purposes only and may not show all delinquencies, see the Taxes tab for more accurate delinquent taxes due.