Elected Officials
Courts
Departments
Initiatives
Open Government
About
Login / Register
Home
/
Property & Tax Records
/
Property Records
/
Property & Tax Search
/
Parcel Profile
/
Print View
Search for Another Parcel
Parcel Profile
Historical Card
Sketches
Photos
Tax Map
Taxes
Print View
Print This Page
Address: 11525 HOPSON HILL RD
Parcel: 44017042000100
Parcel Profile
Address
11525 | HOPSON HILL | RD
Street Status
PAVED
School District
WATTSBURG SCHOOL
Acreage
2.1900
Classification
R
Land Use Code
SINGLE FAMILY
Legal Description
11525 HOPSON HILL RD LOT E 2.19 AC NET | REF. MB 2005-203 & 2005-291
Square Feet
1918
Topo
ROLLING
Utility
GAS | WELL | SEPTIC
Zoning
Please contact your municipal zoning officer
Deed Book
2019
Deed Page
015409
2026 Tax Values
Land Value / Taxable
26,400 / 26,400.00
Building Value / Taxable
78,600 / 78,600.00
Total Value / Taxable
105,000 / 105,000.00
Clean & Green
Inactive
Homestead Status
Active
Farmstead Status
Inactive
Lerta Amount
0
Lerta Expiration Year
0
Residential Data
Card 1
Style
CAPE
Basement
FULL
Year Built
1867
Exterior Wall
COMPOSITION
Total Living Area
1918
Full Baths
3
Half Baths
0
Fuel Type
GAS
Heating
CENTRAL
Heating System
FORCED AIR
Stories
1.5
Total Bedrooms
3
Total Family Rooms
0
Total Rooms
8
Fireplaces
0
Other Buildings & Yards
Description
Built
Width
Length
Area
FOUR SIDE CLOSED MTL POLE BLDG
2009
30
40
1200
Sales History
Sale Date
Type
Price
Book / Page
Other Info
8/7/2019
LAND & BUILDING
191000
2019 / 015409
SPECIAL WARRANTY DEED
10/10/2009
LAND & BUILDING
150000
1598 / 0813
SPECIAL WARRANTY DEED
2/20/2007
LAND & BUILDING
149900
1396 / 0149
DEED
6/29/2004
LAND & BUILDING
169000
1149 / 1821
WARRANTY/SURVIVORSHIP DEED
9/13/1995
0
0402 / 2112
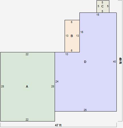
Parcel Sketches
Residential Card 1
A
MAIN
616 square feet
B
EFP ENCL FRAME PORCH
78 square feet
C
OFP OPEN FRAME PORCH
25 square feet
D
1S FR ONE STORY FRAME
840 square feet
Parcel Images
Please note:
this tab is for informational purposes only and may not show all delinquencies, see the Taxes tab for more accurate delinquent taxes due.