Elected Officials
Courts
Departments
Initiatives
Open Government
About
Login / Register
Home
/
Property & Tax Records
/
Property Records
/
Property & Tax Search
/
Parcel Profile
/
Print View
Search for Another Parcel
Parcel Profile
Historical Card
Sketches
Photos
Tax Map
Taxes
Print View
Print This Page
Address: 7590 TURNER RD
Parcel: 44017044000600
Parcel Profile
Address
7590 | TURNER | RD
Street Status
SEMI IMPROVED
School District
WATTSBURG SCHOOL
Acreage
82.0000
Classification
F
Land Use Code
80 ACRES OR MORE
Legal Description
7590 TURNER RD 82 AC
Square Feet
1252
Topo
LEVEL
Utility
WELL | SEPTIC
Zoning
Please contact your municipal zoning officer
Deed Book
0708
Deed Page
0385
2026 Tax Values
Land Value / Taxable
161,100 / 56,400.00
Building Value / Taxable
39,140 / 39,140.00
Total Value / Taxable
200,240 / 95,540.00
Clean & Green
Active
Homestead Status
Inactive
Farmstead Status
Inactive
Lerta Amount
0
Lerta Expiration Year
0
Residential Data
Card 1
Style
RANCH
Basement
PART
Year Built
1900
Exterior Wall
ALUMINUM/VINYL
Total Living Area
1252
Full Baths
1
Half Baths
0
Fuel Type
COAL/WOOD
Heating
NONE
Heating System
NONE
Stories
1.0
Total Bedrooms
3
Total Family Rooms
0
Total Rooms
7
Fireplaces
0
Other Buildings & Yards
Description
Built
Width
Length
Area
FRAME OR CB DETACHED GARAGE
1979
30
40
1200
BANK BARN
1900
40
70
2800
1S LEAN TO
1900
25
34
850
1S LEAN TO
1900
12
16
192
1S LEAN TO
1900
12
15
180
WOOD BOARD CORN CRIB
1900
6
39
234
ATTACHED CB MILK HOUSE
1900
12
14
168
FRAME UTILITY SHED
1900
18
23
414
Sales History
Sale Date
Type
Price
Book / Page
Other Info
11/5/1987
0
0033 / 0271
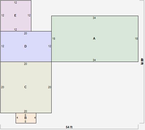
Parcel Sketches
Residential Card 1
A
MAIN
612 square feet
B
OFP OPEN FRAME PORCH
32 square feet
C
1S FR ONE STORY FRAME
400 square feet
D
1S FR ONE STORY FRAME
240 square feet
E
EFP ENCL FRAME PORCH
144 square feet
Parcel Images
Please note:
this tab is for informational purposes only and may not show all delinquencies, see the Taxes tab for more accurate delinquent taxes due.