Elected Officials
Courts
Departments
Initiatives
Open Government
About
Login / Register
Home
/
Property & Tax Records
/
Property Records
/
Property & Tax Search
/
Parcel Profile
/
Print View
Search for Another Parcel
Parcel Profile
Historical Card
Sketches
Photos
Tax Map
Taxes
Print View
Print This Page
Address: 10940 OLD ROUTE 99
Parcel: 45001002001100
Parcel Profile
Address
10940 | OLD ROUTE 99
Street Status
PAVED
School District
GENERAL MCLANE SCHOOL
Acreage
0.6850
Classification
R
Land Use Code
SINGLE FAMILY
Legal Description
10940 OLD ROUTE 99 159.06 X 213.78 IRR
Square Feet
1108
Topo
LEVEL
Utility
WELL | SEPTIC
Zoning
Please contact your municipal zoning officer
Deed Book
2012
Deed Page
014177
2026 Tax Values
Land Value / Taxable
35,600 / 35,600.00
Building Value / Taxable
75,500 / 75,500.00
Total Value / Taxable
111,100 / 111,100.00
Clean & Green
Inactive
Homestead Status
Active
Farmstead Status
Inactive
Lerta Amount
0
Lerta Expiration Year
0
Residential Data
Card 1
Style
CAPE
Basement
FULL
Year Built
1930
Exterior Wall
ALUMINUM/VINYL
Total Living Area
1108
Full Baths
2
Half Baths
0
Fuel Type
GAS
Heating
CENTRAL
Heating System
FORCED AIR
Stories
1.5
Total Bedrooms
3
Total Family Rooms
0
Total Rooms
7
Fireplaces
1
Other Buildings & Yards
Description
Built
Width
Length
Area
FRAME OR CB DETACHED GARAGE
1979
24
24
576
FRAME UTILITY SHED
1979
9
21
189
1S LEAN TO
1979
5
21
105
Sales History
Sale Date
Type
Price
Book / Page
Other Info
6/1/2012
LAND & BUILDING
125000
2012 / 014177
SPECIAL WARRANTY DEED
4/1/2011
LAND & BUILDING
0
2011 / 007389
DEED
8/9/2002
LAND & BUILDING
82000
0909 / 0126
DEED
10/17/1994
0
0358 / 1159
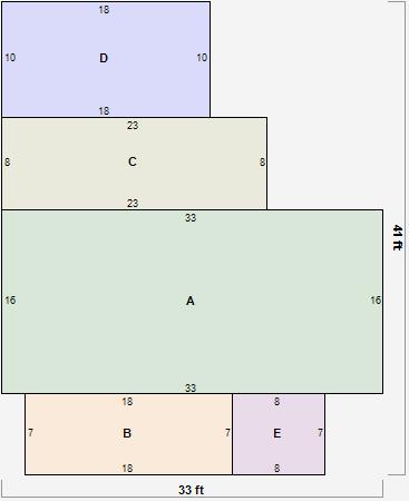
Parcel Sketches
Residential Card 1
A
MAIN
528 square feet
B
EFP ENCL FRAME PORCH
126 square feet
C
1S FR ONE STORY FRAME
184 square feet
D
WDDCK WOOD DECKS
180 square feet
E
MA_PT CONC/MAS PATIO
56 square feet
Parcel Images
Please note:
this tab is for informational purposes only and may not show all delinquencies, see the Taxes tab for more accurate delinquent taxes due.