Elected Officials
Courts
Departments
Initiatives
Open Government
About
Login / Register
Home
/
Property & Tax Records
/
Property Records
/
Property & Tax Search
/
Parcel Profile
/
Print View
Search for Another Parcel
Parcel Profile
Historical Card
Sketches
Photos
Tax Map
Taxes
Print View
Print This Page
Address: 11190 OLIVER RD
Parcel: 45001004001300
Parcel Profile
Address
11190 | OLIVER | RD
Street Status
PAVED
School District
GENERAL MCLANE SCHOOL
Acreage
2.7000
Classification
R
Land Use Code
SINGLE FAMILY
Legal Description
11190 OLIVER RD 2.7 AC
Square Feet
3640
Topo
LEVEL | ROLLING
Utility
WELL | SEPTIC
Zoning
Please contact your municipal zoning officer
Deed Book
1583
Deed Page
0022
2026 Tax Values
Land Value / Taxable
42,100 / 42,100.00
Building Value / Taxable
176,700 / 176,700.00
Total Value / Taxable
218,800 / 218,800.00
Clean & Green
Inactive
Homestead Status
Active
Farmstead Status
Inactive
Lerta Amount
0
Lerta Expiration Year
0
Residential Data
Card 1
Style
OLD STYLE
Basement
PART
Year Built
1938
Exterior Wall
ALUMINUM/VINYL
Total Living Area
3640
Full Baths
3
Half Baths
0
Fuel Type
GAS
Heating
CENTRAL
Heating System
HOT WATER
Stories
2.0
Total Bedrooms
4
Total Family Rooms
1
Total Rooms
10
Fireplaces
0
Other Buildings & Yards
Description
Built
Width
Length
Area
FOUR SIDE CLOSED MTL POLE BLDG
2020
0
0
1872
Sales History
Sale Date
Type
Price
Book / Page
Other Info
6/7/1985
0
1583 / 0022
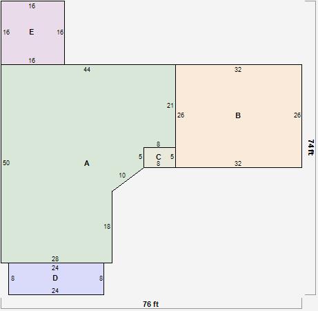
Parcel Sketches
Residential Card 1
A
MAIN
1800 square feet
B
FR GR FRAME GARAGE AT UN ATTIC-UNFINISHED
832 square feet
C
OFP OPEN FRAME PORCH 1S FR ONE STORY FRAME
40 square feet
D
OFP OPEN FRAME PORCH
192 square feet
E
FR GR FRAME GARAGE
256 square feet
Parcel Images
Please note:
this tab is for informational purposes only and may not show all delinquencies, see the Taxes tab for more accurate delinquent taxes due.