Elected Officials
Courts
Departments
Initiatives
Open Government
About
Login / Register
Home
/
Property & Tax Records
/
Property Records
/
Property & Tax Search
/
Parcel Profile
/
Print View
Search for Another Parcel
Parcel Profile
Historical Card
Sketches
Photos
Tax Map
Taxes
Print View
Print This Page
Address: 12081 DRAKETOWN RD
Parcel: 45004007000200
Parcel Profile
Address
12081 | DRAKETOWN | RD
Street Status
PAVED
School District
GENERAL MCLANE SCHOOL
Acreage
89.8900
Classification
F
Land Use Code
80 ACRES OR MORE
Legal Description
12081 DRAKETOWN RD 89.89 AC
Square Feet
2121
Topo
ABOVE STREET
Utility
WELL | SEPTIC
Zoning
Please contact your municipal zoning officer
Deed Book
1107
Deed Page
0346
2026 Tax Values
Land Value / Taxable
97,000 / 51,800.00
Building Value / Taxable
104,000 / 104,000.00
Total Value / Taxable
201,000 / 155,800.00
Clean & Green
Active
Homestead Status
Active
Farmstead Status
Inactive
Lerta Amount
0
Lerta Expiration Year
0
Residential Data
Card 1
Style
OLD STYLE
Basement
PART
Year Built
1890
Exterior Wall
FRAME
Total Living Area
2121
Full Baths
2
Half Baths
0
Fuel Type
OIL
Heating
CENTRAL
Heating System
FORCED AIR
Stories
1.5
Total Bedrooms
3
Total Family Rooms
1
Total Rooms
10
Fireplaces
1
Other Buildings & Yards
Description
Built
Width
Length
Area
FRAME OR CB DETACHED GARAGE
1990
28
40
1120
FRAME OR CB DETACHED GARAGE
1970
40
60
2400
Sales History
Sale Date
Type
Price
Book / Page
Other Info
11/22/2022
0
2022 / 024865
10/12/1973
0
1107 / 0346
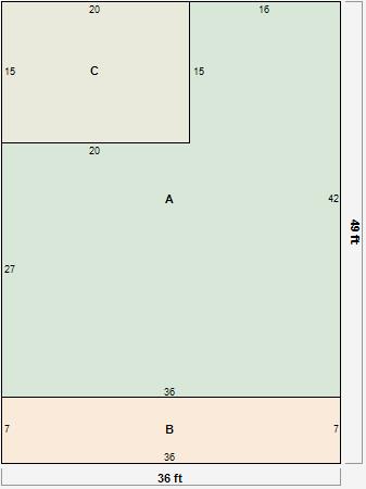
Parcel Sketches
Residential Card 1
A
MAIN
1212 square feet
B
OFP OPEN FRAME PORCH
252 square feet
C
EFP ENCL FRAME PORCH
300 square feet
Parcel Images
Please note:
this tab is for informational purposes only and may not show all delinquencies, see the Taxes tab for more accurate delinquent taxes due.