Elected Officials
Courts
Departments
Initiatives
Open Government
About
Login / Register
Home
/
Property & Tax Records
/
Property Records
/
Property & Tax Search
/
Parcel Profile
/
Print View
Search for Another Parcel
Parcel Profile
Historical Card
Sketches
Photos
Tax Map
Taxes
Print View
Print This Page
Address: 3321 OLD STATE RD
Parcel: 45004008000400
Parcel Profile
Address
3321 | OLD STATE | RD
Street Status
PAVED
School District
GENERAL MCLANE SCHOOL
Acreage
9.1200
Classification
R
Land Use Code
SINGLE FAMILY
Legal Description
3321 OLD STATE RD TR 411 & 413 9.12 AC
Square Feet
2586
Topo
ABOVE STREET
Utility
WELL | SEPTIC
Zoning
Please contact your municipal zoning officer
Deed Book
2019
Deed Page
014679
2025 Tax Values
Land Value / Taxable
65,200 / 65,200.00
Building Value / Taxable
75,400 / 75,400.00
Total Value / Taxable
140,600 / 140,600.00
Clean & Green
Inactive
Homestead Status
Inactive
Farmstead Status
Inactive
Lerta Amount
0
Lerta Expiration Year
0
Residential Data
Card 1
Style
OLD STYLE
Basement
FULL
Year Built
1850
Exterior Wall
ALUMINUM/VINYL
Total Living Area
2586
Full Baths
1
Half Baths
0
Fuel Type
OIL
Heating
CENTRAL
Heating System
FORCED AIR
Stories
2.0
Total Bedrooms
4
Total Family Rooms
1
Total Rooms
9
Fireplaces
0
Other Buildings & Yards
Description
Built
Width
Length
Area
FLAT BARN
1880
20
30
600
Sales History
Sale Date
Type
Price
Book / Page
Other Info
7/30/2019
LAND & BUILDING
0
2019 / 014679
SPECIAL WARRANTY DEED
10/31/1990
0
0142 / 0154
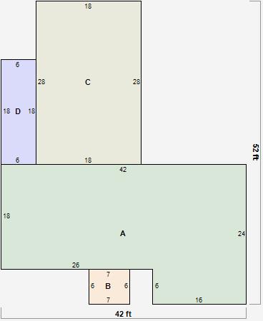
Parcel Sketches
Residential Card 1
A
MAIN
852 square feet
B
MA STOOP/TERR MAS STOOP
42 square feet
C
1S FR ONE STORY FRAME 1/2FR FRAME HALF-STORY
504 square feet
D
OFP OPEN FRAME PORCH
108 square feet
Parcel Images