Elected Officials
Courts
Departments
Initiatives
Open Government
About
Login / Register
Home
/
Property & Tax Records
/
Property Records
/
Property & Tax Search
/
Parcel Profile
/
Print View
Search for Another Parcel
Parcel Profile
Historical Card
Sketches
Photos
Tax Map
Taxes
Print View
Print This Page
Address: 11681 ROUTE 99
Parcel: 45008013000100
Parcel Profile
Address
11681 | ROUTE 99
Street Status
PAVED
School District
GENERAL MCLANE SCHOOL
Acreage
5.0700
Classification
R
Land Use Code
SINGLE FAMILY
Legal Description
11681 ROUTE 99 TR 421 5.07 AC
Square Feet
2098
Topo
LEVEL
Utility
WELL | SEPTIC
Zoning
Please contact your municipal zoning officer
Deed Book
2011
Deed Page
008095
2026 Tax Values
Land Value / Taxable
50,700 / 50,700.00
Building Value / Taxable
94,100 / 94,100.00
Total Value / Taxable
144,800 / 144,800.00
Clean & Green
Inactive
Homestead Status
Active
Farmstead Status
Inactive
Lerta Amount
0
Lerta Expiration Year
0
Residential Data
Card 1
Style
OLD STYLE
Basement
FULL
Year Built
1864
Exterior Wall
ALUMINUM/VINYL
Total Living Area
2098
Full Baths
1
Half Baths
1
Fuel Type
GAS
Heating
CENTRAL A/C
Heating System
FORCED AIR
Stories
2.0
Total Bedrooms
3
Total Family Rooms
1
Total Rooms
9
Fireplaces
3
Other Buildings & Yards
Description
Built
Width
Length
Area
FRAME OR CB DETACHED GARAGE
2003
31
24
744
FRAME UTILITY SHED
1952
16
20
320
Sales History
Sale Date
Type
Price
Book / Page
Other Info
4/11/2011
LAND & BUILDING
125615
2011 / 008095
DEED
4/25/1995
LAND & BUILDING
128500
380 / 2108
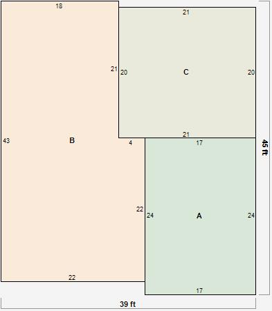
Parcel Sketches
Residential Card 1
A
MAIN
408 square feet
B
UNFIN BSMT BASEMENT UNFINISHED 1S FR ONE STORY FRAME
862 square feet
C
1S FR ONE STORY FRAME
420 square feet
Parcel Images
Please note:
this tab is for informational purposes only and may not show all delinquencies, see the Taxes tab for more accurate delinquent taxes due.