Elected Officials
Courts
Departments
Initiatives
Open Government
About
Login / Register
Home
/
Property & Tax Records
/
Property Records
/
Property & Tax Search
/
Parcel Profile
/
Print View
Search for Another Parcel
Parcel Profile
Historical Card
Sketches
Photos
Tax Map
Taxes
Print View
Print This Page
Address: 12671 OLD ROUTE 86
Parcel: 45010017000700
Parcel Profile
Address
12671 | OLD ROUTE 86
Street Status
PAVED
School District
GENERAL MCLANE SCHOOL
Acreage
43.0500
Classification
F
Land Use Code
20 - 79.99 ACRES
Legal Description
OLD ROUTE 86 TR K 43.5 AC
Square Feet
1698
Topo
ROLLING
Utility
NONE
Zoning
Please contact your municipal zoning officer
Deed Book
2016
Deed Page
027105
2026 Tax Values
Land Value / Taxable
97,800 / 24,000.00
Building Value / Taxable
50,560 / 50,560.00
Total Value / Taxable
148,360 / 74,560.00
Clean & Green
Active
Homestead Status
Active
Farmstead Status
Inactive
Lerta Amount
0
Lerta Expiration Year
0
Residential Data
Card 1
Style
CONVENTIONAL
Basement
CRAWL
Year Built
1867
Exterior Wall
ALUMINUM/VINYL
Total Living Area
1698
Full Baths
1
Half Baths
0
Fuel Type
GAS
Heating
CENTRAL
Heating System
HOT WATER
Stories
2.0
Total Bedrooms
3
Total Family Rooms
0
Total Rooms
6
Fireplaces
0
Other Buildings & Yards
Description
Built
Width
Length
Area
FRAME UTILITY SHED
1900
10
10
100
Sales History
Sale Date
Type
Price
Book / Page
Other Info
12/13/2016
LAND & BUILDING
0
2016 / 027104
SPECIAL WARRANTY DEED
12/13/2016
LAND & BUILDING
0
2016 / 027105
SPECIAL WARRANTY DEED
9/19/2003
LAND & BUILDING
0
1066 / 1221
WARRANTY/SURVIVORSHIP DEED
6/5/1969
0
1003 / 0591
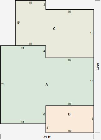
Parcel Sketches
Residential Card 1
A
MAIN
646 square feet
B
EFP ENCL FRAME PORCH
144 square feet
C
1S FR ONE STORY FRAME
406 square feet
Parcel Images
Please note:
this tab is for informational purposes only and may not show all delinquencies, see the Taxes tab for more accurate delinquent taxes due.