Elected Officials
Courts
Departments
Initiatives
Open Government
About
Login / Register
Home
/
Property & Tax Records
/
Property Records
/
Property & Tax Search
/
Parcel Profile
/
Print View
Search for Another Parcel
Parcel Profile
Historical Card
Sketches
Photos
Tax Map
Taxes
Print View
Print This Page
Address: 13051 ROUTE 86
Parcel: 45011018001100
Parcel Profile
Address
13051 | ROUTE 86
Street Status
PAVED
School District
GENERAL MCLANE SCHOOL
Acreage
71.5120
Classification
F
Land Use Code
20 - 79.99 ACRES
Legal Description
ROUTE 86 71.512 AC
Square Feet
1645
Topo
LEVEL | ROLLING
Utility
WELL | SEPTIC
Zoning
Please contact your municipal zoning officer
Deed Book
1052
Deed Page
719
2026 Tax Values
Land Value / Taxable
138,300 / 39,300.00
Building Value / Taxable
67,800 / 67,800.00
Total Value / Taxable
206,100 / 107,100.00
Clean & Green
Active
Homestead Status
Active
Farmstead Status
Inactive
Lerta Amount
0
Lerta Expiration Year
0
Residential Data
Card 1
Style
OLD STYLE
Basement
PART
Year Built
1867
Exterior Wall
FRAME
Total Living Area
1645
Full Baths
1
Half Baths
0
Fuel Type
OIL
Heating
CENTRAL
Heating System
FORCED AIR
Stories
1.5
Total Bedrooms
4
Total Family Rooms
1
Total Rooms
7
Fireplaces
0
Other Buildings & Yards
Description
Built
Width
Length
Area
ATTACHED CB MILK HOUSE
1959
17
22
374
BANK BARN
1917
30
40
1200
FOUR SIDE CLOSED MTL POLE BLDG
2021
40
60
2400
Sales History
Sale Date
Type
Price
Book / Page
Other Info
8/18/2003
LAND & BUILDING
0
1052 / 719
WARRANTY/SURVIVORSHIP DEED
8/6/1981
0
1429 / 0323
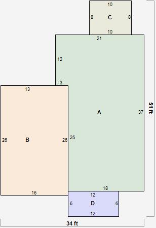
Parcel Sketches
Residential Card 1
A
MAIN
702 square feet
B
UNFIN BSMT BASEMENT UNFINISHED 1S FR ONE STORY FRAME
416 square feet
C
MA STOOP/TERR MAS STOOP
80 square feet
D
WDDCK WOOD DECKS
72 square feet
Parcel Images
Please note:
this tab is for informational purposes only and may not show all delinquencies, see the Taxes tab for more accurate delinquent taxes due.