Elected Officials
Courts
Departments
Initiatives
Open Government
About
Login / Register
Home
/
Property & Tax Records
/
Property Records
/
Property & Tax Search
/
Parcel Profile
/
Print View
Search for Another Parcel
Parcel Profile
Historical Card
Sketches
Photos
Tax Map
Taxes
Print View
Print This Page
Address: 12830 ROUTE 86
Parcel: 45012019001200
Parcel Profile
Address
12830 | ROUTE 86
Street Status
PAVED
School District
GENERAL MCLANE SCHOOL
Acreage
1.2500
Classification
R
Land Use Code
SINGLE FAMILY
Legal Description
12830 ROUTE 86 STATE HWY 86 1.25 AC
Square Feet
1628
Topo
LEVEL
Utility
WELL | SEPTIC
Zoning
Please contact your municipal zoning officer
Deed Book
0067
Deed Page
0641
2026 Tax Values
Land Value / Taxable
36,900 / 36,900.00
Building Value / Taxable
36,900 / 36,900.00
Total Value / Taxable
73,800 / 73,800.00
Clean & Green
Inactive
Homestead Status
Active
Farmstead Status
Inactive
Lerta Amount
0
Lerta Expiration Year
0
Residential Data
Card 1
Style
OLD STYLE
Basement
PART
Year Built
1920
Exterior Wall
ALUMINUM/VINYL
Total Living Area
1628
Full Baths
1
Half Baths
0
Fuel Type
OIL
Heating
CENTRAL
Heating System
FORCED AIR
Stories
1.5
Total Bedrooms
3
Total Family Rooms
1
Total Rooms
7
Fireplaces
0
Other Buildings & Yards
Description
Built
Width
Length
Area
FOUR SIDE CLOSED WD POLE BLDG
1991
31
40
1240
Sales History
Sale Date
Type
Price
Book / Page
Other Info
10/12/1988
0
0067 / 0641
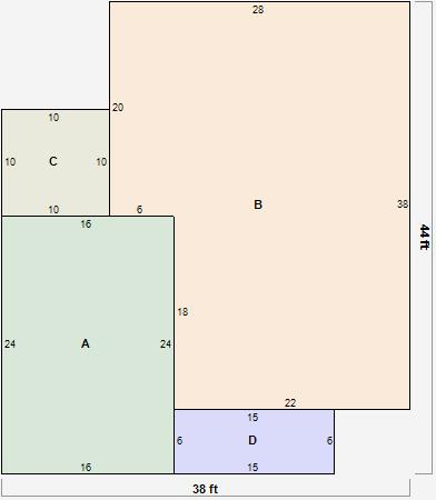
Parcel Sketches
Residential Card 1
A
MAIN
384 square feet
B
1S FR ONE STORY FRAME
956 square feet
C
EFP ENCL FRAME PORCH
100 square feet
D
WDDCK WOOD DECKS
90 square feet
Parcel Images