Elected Officials
Courts
Departments
Initiatives
Open Government
About
Login / Register
Home
/
Property & Tax Records
/
Property Records
/
Property & Tax Search
/
Parcel Profile
/
Print View
Search for Another Parcel
Parcel Profile
Historical Card
Sketches
Photos
Tax Map
Taxes
Print View
Print This Page
Address: 6170 ROUTE 6N
Parcel: 45019040000500
Parcel Profile
Address
6170 | ROUTE 6N
Street Status
PAVED
School District
GENERAL MCLANE SCHOOL
Acreage
0.7829
Classification
R
Land Use Code
SINGLE FAMILY
Legal Description
6170 ROUTE 6N 261.66 X 138
Square Feet
1672
Topo
LEVEL
Utility
WELL | SEPTIC
Zoning
Please contact your municipal zoning officer
Deed Book
2025
Deed Page
022146
2026 Tax Values
Land Value / Taxable
33,100 / 33,100.00
Building Value / Taxable
121,270 / 121,270.00
Total Value / Taxable
154,370 / 154,370.00
Clean & Green
Inactive
Homestead Status
Active
Farmstead Status
Inactive
Lerta Amount
0
Lerta Expiration Year
0
Residential Data
Card 1
Style
OLD STYLE
Basement
FULL
Year Built
1900
Exterior Wall
ALUMINUM/VINYL
Total Living Area
1672
Full Baths
2
Half Baths
0
Fuel Type
PROPANE
Heating
CENTRAL
Heating System
FORCED AIR
Stories
2.0
Total Bedrooms
3
Total Family Rooms
0
Total Rooms
7
Fireplaces
0
Other Buildings & Yards
Description
Built
Width
Length
Area
FRAME UTILITY SHED
2000
10
16
160
FOUR SIDE CLOSED WD POLE BLDG
2005
24
28
672
FRAME UTILITY SHED
2011
10
16
160
Sales History
Sale Date
Type
Price
Book / Page
Other Info
12/12/2025
LAND & BUILDING
118000
2025 / 022146
SHERIFF'S DED
2/8/2013
LAND & BUILDING
0
2013 / 003182
WARRANTY/SURVIVORSHIP DEED
8/7/2006
LAND & BUILDING
149000
1350 / 2135
WARRANTY/SURVIVORSHIP DEED
8/9/2005
LAND & BUILDING
125800
1258 / 1956
WARRANTY/SURVIVORSHIP DEED
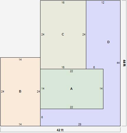
Parcel Sketches
Residential Card 1
A
MAIN
308 square feet
B
1S FR ONE STORY FRAME 1S FR ONE STORY FRAME
336 square feet
C
1S FR ONE STORY FRAME
384 square feet
D
OFP OPEN FRAME PORCH
540 square feet
Parcel Images
Please note:
this tab is for informational purposes only and may not show all delinquencies, see the Taxes tab for more accurate delinquent taxes due.