Elected Officials
Courts
Departments
Initiatives
Open Government
About
Login / Register
Home
/
Property & Tax Records
/
Property Records
/
Property & Tax Search
/
Parcel Profile
/
Print View
Search for Another Parcel
Parcel Profile
Historical Card
Sketches
Photos
Tax Map
Taxes
Print View
Print This Page
Address: 12210 SILVERTHORN RD
Parcel: 45019041000400
Parcel Profile
Address
12210 | SILVERTHORN | RD
Street Status
PAVED
School District
GENERAL MCLANE SCHOOL
Acreage
47.0000
Classification
F
Land Use Code
20 - 79.99 ACRES
Legal Description
12210 SILVERTHORN RD 47 AC
Square Feet
1658
Topo
LEVEL
Utility
WELL | SEPTIC
Zoning
Please contact your municipal zoning officer
Deed Book
0918
Deed Page
0590
2026 Tax Values
Land Value / Taxable
106,300 / 18,600.00
Building Value / Taxable
92,300 / 92,300.00
Total Value / Taxable
198,600 / 110,900.00
Clean & Green
Active
Homestead Status
Active
Farmstead Status
Active
Lerta Amount
0
Lerta Expiration Year
0
Residential Data
Card 1
Style
OLD STYLE
Basement
PART
Year Built
1867
Exterior Wall
ALUMINUM/VINYL
Total Living Area
1658
Full Baths
1
Half Baths
0
Fuel Type
PROPANE
Heating
CENTRAL
Heating System
FORCED AIR
Stories
2.0
Total Bedrooms
3
Total Family Rooms
1
Total Rooms
7
Fireplaces
0
Other Buildings & Yards
Description
Built
Width
Length
Area
FOUR SIDE CLOSED MTL POLE BLDG
1976
32
56
1792
QUONSET BUILDING
1959
34
62
2108
FOUR SIDE CLOSED MTL POLE BLDG
2018
28
16
448
CANOPY
2018
0
0
368
WOOD BOARD CORN CRIB
1900
18
25
450
FOUR SIDE CLOSED MTL POLE BLDG
1984
24
32
768
CONCRETE STAVE WITH ROOF
1981
22
52
19757
CONCRETE STAVE WITH ROOF
1958
14
40
6154
CONCRETE STAVE WITH ROOF
1958
16
40
8038
BANK BARN ADDITION
1967
20
46
920
BANK BARN ADDITION
1867
46
30
1380
ATTACHED CB MILK HOUSE
1962
16
20
320
BANK BARN
1867
32
44
1408
BANK BARN ADDITION
1967
20
44
880
FOUR SIDE CLOSED MTL POLE BLDG
1981
40
80
3200
COMM GREENHSE - ECONOMY
2012
30
72
2160
Sales History
Sale Date
Type
Price
Book / Page
Other Info
9/9/2002
LAND & BUILDING
0
0918 / 0590
AFFIDAVIT
4/23/1993
0
0264 / 1654
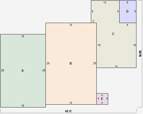
Parcel Sketches
Residential Card 1
A
MAIN
416 square feet
B
1S FR ONE STORY FRAME
522 square feet
C
1S FR ONE STORY FRAME
304 square feet
D
OFP OPEN FRAME PORCH
48 square feet
E
OFP OPEN FRAME PORCH
16 square feet
Parcel Images
Please note:
this tab is for informational purposes only and may not show all delinquencies, see the Taxes tab for more accurate delinquent taxes due.