Elected Officials
Courts
Departments
Initiatives
Open Government
About
Login / Register
Home
/
Property & Tax Records
/
Property Records
/
Property & Tax Search
/
Parcel Profile
/
Print View
Search for Another Parcel
Parcel Profile
Historical Card
Sketches
Photos
Tax Map
Taxes
Print View
Print This Page
Address: 4341 ROUTE 6N
Parcel: 45022053000400
Parcel Profile
Address
4341 | ROUTE 6N
Street Status
PAVED
School District
GENERAL MCLANE SCHOOL
Acreage
10.0000
Classification
F
Land Use Code
10-19.99 ACRES
Legal Description
4341 ROUTE 6N TR 425 10 AC
Square Feet
1575
Topo
LEVEL
Utility
GAS | WELL | SEPTIC
Zoning
Please contact your municipal zoning officer
Deed Book
0106
Deed Page
1599
2025 Tax Values
Land Value / Taxable
54,400 / 54,400.00
Building Value / Taxable
85,460 / 85,460.00
Total Value / Taxable
139,860 / 139,860.00
Clean & Green
Inactive
Homestead Status
Active
Farmstead Status
Inactive
Lerta Amount
0
Lerta Expiration Year
0
Residential Data
Card 1
Style
CONVENTIONAL
Basement
FULL
Year Built
1929
Exterior Wall
ALUMINUM/VINYL
Total Living Area
1575
Full Baths
1
Half Baths
0
Fuel Type
COAL/WOOD
Heating
CENTRAL
Heating System
FORCED AIR
Stories
1.5
Total Bedrooms
3
Total Family Rooms
0
Total Rooms
7
Fireplaces
0
Other Buildings & Yards
Description
Built
Width
Length
Area
FRAME UTILITY SHED
2008
10
18
180
Sales History
Sale Date
Type
Price
Book / Page
Other Info
11/29/1989
0
0106 / 1599
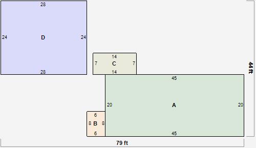
Parcel Sketches
Residential Card 1
A
MAIN
900 square feet
B
WDDCK WOOD DECKS
48 square feet
C
FR UT FRAME UTILITY BUILDING
98 square feet
D
FR GR FRAME GARAGE
672 square feet
Parcel Images