Elected Officials
Courts
Departments
Initiatives
Open Government
About
Login / Register
Home
/
Property & Tax Records
/
Property Records
/
Property & Tax Search
/
Parcel Profile
/
Print View
Search for Another Parcel
Parcel Profile
Historical Card
Sketches
Photos
Tax Map
Taxes
Print View
Print This Page
Address: 13310 EDINBORO PLANK RD
Parcel: 45024055000100
Parcel Profile
Address
13310 | EDINBORO PLANK | RD
Street Status
PAVED
School District
GENERAL MCLANE SCHOOL
Acreage
56.9190
Classification
F
Land Use Code
20 - 79.99 ACRES
Legal Description
13310 EDINBORO PLANK RD 56.919 AC NET | 57.979 AC GROSS
Square Feet
3054
Topo
ROLLING
Utility
WELL | SEPTIC
Zoning
Please contact your municipal zoning officer
Deed Book
2021
Deed Page
015435
2026 Tax Values
Land Value / Taxable
143,200 / 36,900.00
Building Value / Taxable
119,700 / 119,700.00
Total Value / Taxable
262,900 / 156,600.00
Clean & Green
Active
Homestead Status
Active
Farmstead Status
Inactive
Lerta Amount
0
Lerta Expiration Year
0
Residential Data
Card 1
Style
OLD STYLE
Basement
FULL
Year Built
1890
Exterior Wall
BRICK
Total Living Area
3054
Full Baths
2
Half Baths
0
Fuel Type
OIL
Heating
CENTRAL
Heating System
HOT WATER
Stories
2.0
Total Bedrooms
5
Total Family Rooms
1
Total Rooms
10
Fireplaces
0
Other Buildings & Yards
Description
Built
Width
Length
Area
BANK BARN
1890
46
68
3128
BANK BARN ADDITION
1940
9
12
108
ATTACHED CB MILK HOUSE
1940
14
16
224
FRAME UTILITY SHED
1950
10
12
120
FRAME OR CB DETACHED GARAGE
1950
20
38
760
1S LEAN TO
1950
16
38
608
35' ROOF 5 GAUGE WIRE CRIB
1950
12
16
1809
BARN CLEANER GUTTER
1950
26
130
1
BUTLER LMS SILO
1960
21
16
5539
FRAME OR CB DETACHED GARAGE
1962
21
40
840
FRAME UTILITY SHED
1940
14
20
280
FRAME OR CB DETACHED GARAGE
1900
26
30
780
ONE SIDE OPEN MTL POLE BLDG
1985
45
125
5625
CANOPY
2002
16
32
512
Sales History
Sale Date
Type
Price
Book / Page
Other Info
6/16/2021
LAND & BUILDING
0
2021 / 015435
QUIT CLAIM DEED
5/31/2001
LAND & BUILDING
0
0779 / 0154
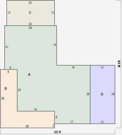
Parcel Sketches
Residential Card 1
A
MAIN
1359 square feet
B
OFP OPEN FRAME PORCH
368 square feet
C
EFP ENCL FRAME PORCH
276 square feet
D
1S FR ONE STORY FRAME
336 square feet
Parcel Images
Please note:
this tab is for informational purposes only and may not show all delinquencies, see the Taxes tab for more accurate delinquent taxes due.