Elected Officials
Courts
Departments
Initiatives
Open Government
About
Login / Register
Home
/
Property & Tax Records
/
Property Records
/
Property & Tax Search
/
Parcel Profile
/
Print View
Search for Another Parcel
Parcel Profile
Historical Card
Sketches
Photos
Tax Map
Taxes
Print View
Print This Page
Address: 1751 KINTER HILL RD
Parcel: 45026065000101
Parcel Profile
Address
1751 | KINTER HILL | RD
Street Status
PAVED
School District
GENERAL MCLANE SCHOOL
Acreage
1.8370
Classification
R
Land Use Code
SINGLE FAMILY
Legal Description
1751 KINTER HILL RD LOT A 1.837 AC
Square Feet
1536
Topo
LEVEL
Utility
GAS | SEPTIC
Zoning
Please contact your municipal zoning officer
Deed Book
2023
Deed Page
020772
2026 Tax Values
Land Value / Taxable
39,000 / 39,000.00
Building Value / Taxable
79,650 / 79,650.00
Total Value / Taxable
118,650 / 118,650.00
Clean & Green
Inactive
Homestead Status
Inactive
Farmstead Status
Inactive
Lerta Amount
0
Lerta Expiration Year
0
Residential Data
Card 1
Style
OLD STYLE
Basement
FULL
Year Built
1900
Exterior Wall
ALUMINUM/VINYL
Total Living Area
1536
Full Baths
1
Half Baths
0
Fuel Type
OIL
Heating
CENTRAL
Heating System
FORCED AIR
Stories
2.0
Total Bedrooms
4
Total Family Rooms
0
Total Rooms
8
Fireplaces
0
Other Buildings & Yards
Description
Built
Width
Length
Area
BANK BARN
1900
44
36
1584
Sales History
Sale Date
Type
Price
Book / Page
Other Info
11/30/2023
LAND & BUILDING
0
2023 / 020772
FIDUCIARY DEED
10/24/2017
LAND & BUILDING
0
2017 / 023402
QUIT CLAIM DEED
8/11/2015
LAND & BUILDING
170000
2015 / 017438
SPECIAL WARRANTY DEED
2/1/2006
LAND & BUILDING
85000
1303 / 2236
SPECIAL WARRANTY DEED
12/11/2000
0
0742 / 0645
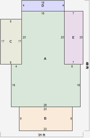
Parcel Sketches
Residential Card 1
A
MAIN
736 square feet
B
OFP OPEN FRAME PORCH
180 square feet
C
OFP OPEN FRAME PORCH
136 square feet
D
UNFIN BSMT BASEMENT UNFINISHED 1S FR ONE STORY FRAME
64 square feet
E
EFP ENCL FRAME PORCH
140 square feet
Parcel Images
Please note:
this tab is for informational purposes only and may not show all delinquencies, see the Taxes tab for more accurate delinquent taxes due.