Elected Officials
Courts
Departments
Initiatives
Open Government
About
Login / Register
Home
/
Property & Tax Records
/
Property Records
/
Property & Tax Search
/
Parcel Profile
/
Print View
Search for Another Parcel
Parcel Profile
Historical Card
Sketches
Photos
Tax Map
Taxes
Print View
Print This Page
Address: 13440 PERRY LN
Parcel: 45029051000300
Parcel Profile
Address
13440 | PERRY | LN
Street Status
PAVED
School District
GENERAL MCLANE SCHOOL
Acreage
2.0000
Classification
R
Land Use Code
SINGLE FAMILY
Legal Description
13440 PERRY LN 2 AC
Square Feet
1634
Topo
LEVEL
Utility
ALL PUBLIC
Zoning
Please contact your municipal zoning officer
Deed Book
2022
Deed Page
000031
2026 Tax Values
Land Value / Taxable
39,600 / 39,600.00
Building Value / Taxable
113,500 / 113,500.00
Total Value / Taxable
153,100 / 153,100.00
Clean & Green
Inactive
Homestead Status
Inactive
Farmstead Status
Inactive
Lerta Amount
0
Lerta Expiration Year
0
Residential Data
Card 1
Style
CONVENTIONAL
Basement
PART
Year Built
1917
Exterior Wall
ALUMINUM/VINYL
Total Living Area
1634
Full Baths
1
Half Baths
0
Fuel Type
GAS
Heating
CENTRAL
Heating System
FORCED AIR
Stories
2.0
Total Bedrooms
3
Total Family Rooms
0
Total Rooms
10
Fireplaces
0
Other Buildings & Yards
No OBY Data Found
Sales History
Sale Date
Type
Price
Book / Page
Other Info
1/3/2022
LAND & BUILDING
0
2022 / 000031
QUIT CLAIM DEED
7/24/2014
LAND & BUILDING
91000
2014 / 015205
SPECIAL WARRANTY DEED
1/16/1992
0
0191 / 1996
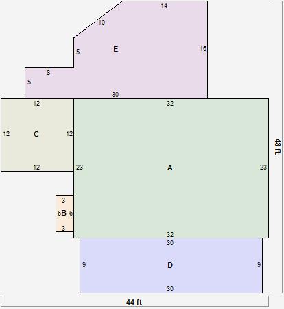
Parcel Sketches
Residential Card 1
A
MAIN
736 square feet
B
FRBAY FRAME BAY
18 square feet
C
1S FR ONE STORY FRAME
144 square feet
D
OFP OPEN FRAME PORCH
270 square feet
E
WDDCK WOOD DECKS
368 square feet
Parcel Images
Please note:
this tab is for informational purposes only and may not show all delinquencies, see the Taxes tab for more accurate delinquent taxes due.