Elected Officials
Courts
Departments
Initiatives
Open Government
About
Login / Register
Home
/
Property & Tax Records
/
Property Records
/
Property & Tax Search
/
Parcel Profile
/
Print View
Search for Another Parcel
Parcel Profile
Historical Card
Sketches
Photos
Tax Map
Taxes
Print View
Print This Page
Address: 12960 CAMBRIDGE SPRINGS RD
Parcel: 45030049000200
Parcel Profile
Address
12960 | CAMBRIDGE SPRINGS | RD
Street Status
PAVED
School District
GENERAL MCLANE SCHOOL
Acreage
0.9601
Classification
R
Land Use Code
SINGLE FAMILY
Legal Description
12960 CAMBRIDGE SPRINGS RD STATE HWY 99 96X340 IRR
Square Feet
1672
Topo
ROLLING
Utility
PUBLIC WATER | SEPTIC
Zoning
Please contact your municipal zoning officer
Deed Book
0879
Deed Page
0170
2026 Tax Values
Land Value / Taxable
36,100 / 36,100.00
Building Value / Taxable
101,440 / 101,440.00
Total Value / Taxable
137,540 / 137,540.00
Clean & Green
Inactive
Homestead Status
Active
Farmstead Status
Inactive
Lerta Amount
0
Lerta Expiration Year
0
Residential Data
Card 1
Style
CONVENTIONAL
Basement
FULL
Year Built
1930
Exterior Wall
ALUMINUM/VINYL
Total Living Area
1672
Full Baths
2
Half Baths
1
Fuel Type
GAS
Heating
CENTRAL
Heating System
FORCED AIR
Stories
2.0
Total Bedrooms
4
Total Family Rooms
0
Total Rooms
7
Fireplaces
1
Other Buildings & Yards
No OBY Data Found
Sales History
Sale Date
Type
Price
Book / Page
Other Info
5/10/2002
LAND & BUILDING
149900
0879 / 0170
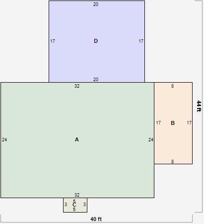
Parcel Sketches
Residential Card 1
A
MAIN
768 square feet
B
1S FR ONE STORY FRAME
136 square feet
C
MA STOOP/TERR MAS STOOP
15 square feet
D
WDDCK WOOD DECKS
340 square feet
Parcel Images
Please note:
this tab is for informational purposes only and may not show all delinquencies, see the Taxes tab for more accurate delinquent taxes due.