Elected Officials
Courts
Departments
Initiatives
Open Government
About
Login / Register
Home
/
Property & Tax Records
/
Property Records
/
Property & Tax Search
/
Parcel Profile
/
Print View
Search for Another Parcel
Parcel Profile
Historical Card
Sketches
Photos
Tax Map
Taxes
Print View
Print This Page
Address: 12970 ROUTE 99
Parcel: 45030049000300
Parcel Profile
Address
12970 | ROUTE 99
Street Status
PAVED
School District
GENERAL MCLANE SCHOOL
Acreage
0.4260
Classification
R
Land Use Code
SINGLE FAMILY
Legal Description
12970 ROUTE 99 LOT 1 100 X 210 IRR | 0.426 AC
Square Feet
1648
Topo
LEVEL
Utility
WELL | SEPTIC
Zoning
Please contact your municipal zoning officer
Deed Book
2021
Deed Page
023165
2026 Tax Values
Land Value / Taxable
33,400 / 33,400.00
Building Value / Taxable
66,100 / 66,100.00
Total Value / Taxable
99,500 / 99,500.00
Clean & Green
Inactive
Homestead Status
Inactive
Farmstead Status
Inactive
Lerta Amount
0
Lerta Expiration Year
0
Residential Data
Card 1
Style
CONVENTIONAL
Basement
PART
Year Built
1910
Exterior Wall
ALUMINUM/VINYL
Total Living Area
1648
Full Baths
1
Half Baths
0
Fuel Type
GAS
Heating
CENTRAL
Heating System
FORCED AIR
Stories
2.0
Total Bedrooms
4
Total Family Rooms
0
Total Rooms
7
Fireplaces
0
Other Buildings & Yards
Description
Built
Width
Length
Area
FRAME OR CB DETACHED GARAGE
1930
18
22
396
FRAME UTILITY SHED
1930
18
14
252
FRAME UTILITY SHED
2000
12
24
288
Sales History
Sale Date
Type
Price
Book / Page
Other Info
8/30/2021
LAND & BUILDING
138000
2021 / 023165
SPECIAL WARRANTY DEED
11/17/2017
LAND & BUILDING
107500
2017 / 025428
DEED
6/26/2007
LAND & BUILDING
71000
1426 / 1731
DEED
6/7/2007
LAND & BUILDING
0
1421 / 1973
CORRECTIVE DEED
12/14/2006
LAND & BUILDING
0
1382 / 1943
SHERIFF'S DED
11/1/2002
LAND & BUILDING
72000
0940 / 1649
6/15/1971
0
1045 / 0449
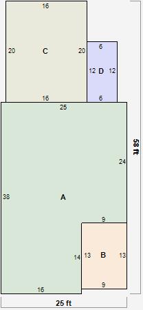
Parcel Sketches
Residential Card 1
A
MAIN
824 square feet
B
EFP ENCL FRAME PORCH
117 square feet
C
EFP ENCL FRAME PORCH
320 square feet
D
OFP OPEN FRAME PORCH
72 square feet
Parcel Images
Please note:
this tab is for informational purposes only and may not show all delinquencies, see the Taxes tab for more accurate delinquent taxes due.