Elected Officials
Courts
Departments
Initiatives
Open Government
About
Login / Register
Home
/
Property & Tax Records
/
Property Records
/
Property & Tax Search
/
Parcel Profile
/
Print View
Search for Another Parcel
Parcel Profile
Historical Card
Sketches
Photos
Tax Map
Taxes
Print View
Print This Page
Address: 12990 ROUTE 99
Parcel: 45030049000500
Parcel Profile
Address
12990 | ROUTE 99
Street Status
PAVED
School District
GENERAL MCLANE SCHOOL
Acreage
1.8939
Classification
R
Land Use Code
SINGLE FAMILY
Legal Description
12990 ROUTE 99 455 X 260 IRR
Square Feet
1238
Topo
LEVEL
Utility
WELL | SEPTIC
Zoning
Please contact your municipal zoning officer
Deed Book
2018
Deed Page
023008
2026 Tax Values
Land Value / Taxable
30,000 / 30,000.00
Building Value / Taxable
39,828 / 39,828.00
Total Value / Taxable
69,828 / 69,828.00
Clean & Green
Inactive
Homestead Status
Inactive
Farmstead Status
Inactive
Lerta Amount
0
Lerta Expiration Year
0
Residential Data
Card 1
Style
BUNGALOW
Basement
PART
Year Built
1890
Exterior Wall
FRAME
Total Living Area
1238
Full Baths
1
Half Baths
0
Fuel Type
GAS
Heating
CENTRAL
Heating System
FORCED AIR
Stories
1.0
Total Bedrooms
2
Total Family Rooms
0
Total Rooms
7
Fireplaces
0
Other Buildings & Yards
Description
Built
Width
Length
Area
FRAME OR CB DETACHED GARAGE
1970
20
24
480
Sales History
Sale Date
Type
Price
Book / Page
Other Info
11/5/2018
LAND & BUILDING
41500
2018 / 023008
SPECIAL WARRANTY DEED
1/1/1964
0
0902 / 0627
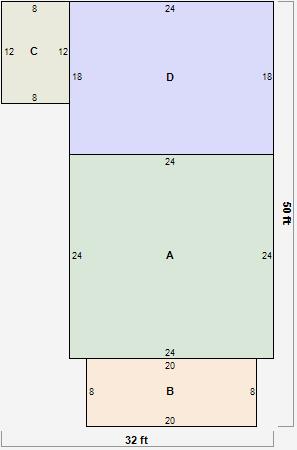
Parcel Sketches
Residential Card 1
A
MAIN
576 square feet
B
OFP OPEN FRAME PORCH
160 square feet
C
WDDCK WOOD DECKS
96 square feet
D
1S FR ONE STORY FRAME
432 square feet
Parcel Images
Please note:
this tab is for informational purposes only and may not show all delinquencies, see the Taxes tab for more accurate delinquent taxes due.