Elected Officials
Courts
Departments
Initiatives
Open Government
About
Login / Register
Home
/
Property & Tax Records
/
Property Records
/
Property & Tax Search
/
Parcel Profile
/
Print View
Search for Another Parcel
Parcel Profile
Historical Card
Sketches
Photos
Tax Map
Taxes
Print View
Print This Page
Address: 611 HIGH ST
Parcel: 46003010000900
Parcel Profile
Address
611 | HIGH | ST
Street Status
PAVED
School District
FORT LEBOEUF SCHOOL
Acreage
0.2936
Classification
R
Land Use Code
SINGLE FAMILY
Legal Description
611 HIGH ST 82.5 X 155
Square Feet
2744
Topo
LEVEL
Utility
ALL PUBLIC
Zoning
Please contact your municipal zoning officer
Deed Book
0455
Deed Page
1309
2026 Tax Values
Land Value / Taxable
29,800 / 29,800.00
Building Value / Taxable
99,100 / 99,100.00
Total Value / Taxable
128,900 / 128,900.00
Clean & Green
Inactive
Homestead Status
Active
Farmstead Status
Inactive
Lerta Amount
0
Lerta Expiration Year
0
Residential Data
Card 1
Style
OLD STYLE
Basement
FULL
Year Built
1900
Exterior Wall
BRICK
Total Living Area
2744
Full Baths
1
Half Baths
1
Fuel Type
GAS
Heating
CENTRAL A/C
Heating System
FORCED AIR
Stories
1.5
Total Bedrooms
4
Total Family Rooms
0
Total Rooms
9
Fireplaces
1
Other Buildings & Yards
Description
Built
Width
Length
Area
FRAME OR CB DETACHED GARAGE
1977
24
30
720
Sales History
Sale Date
Type
Price
Book / Page
Other Info
8/12/1996
LAND & BUILDING
120000
0455 / 1309
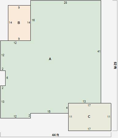
Parcel Sketches
Residential Card 1
A
MAIN
1568 square feet
B
EFP ENCL FRAME PORCH
126 square feet
C
OMP OPEN MASONRY PORCH
187 square feet
Parcel Images
Please note:
this tab is for informational purposes only and may not show all delinquencies, see the Taxes tab for more accurate delinquent taxes due.