Elected Officials
Courts
Departments
Initiatives
Open Government
About
Login / Register
Home
/
Property & Tax Records
/
Property Records
/
Property & Tax Search
/
Parcel Profile
/
Print View
Search for Another Parcel
Parcel Profile
Historical Card
Sketches
Photos
Tax Map
Taxes
Print View
Print This Page
Address: 157 W 4 ST
Parcel: 46005036000100
Parcel Profile
Address
157 | W | 4 | ST
Street Status
PAVED
School District
FORT LEBOEUF SCHOOL
Acreage
0.2936
Classification
R
Land Use Code
SINGLE FAMILY
Legal Description
157 WEST 4 ST 82.5 X 155
Square Feet
1584
Topo
LEVEL | ROLLING
Utility
ALL PUBLIC
Zoning
Please contact your municipal zoning officer
Deed Book
2025
Deed Page
001997
2026 Tax Values
Land Value / Taxable
29,800 / 29,800.00
Building Value / Taxable
70,250 / 70,250.00
Total Value / Taxable
100,050 / 100,050.00
Clean & Green
Inactive
Homestead Status
Active
Farmstead Status
Inactive
Lerta Amount
0
Lerta Expiration Year
0
Residential Data
Card 1
Style
OLD STYLE
Basement
FULL
Year Built
1900
Exterior Wall
ALUMINUM/VINYL
Total Living Area
1584
Full Baths
1
Half Baths
1
Fuel Type
GAS
Heating
CENTRAL
Heating System
FORCED AIR
Stories
2.0
Total Bedrooms
2
Total Family Rooms
0
Total Rooms
7
Fireplaces
0
Other Buildings & Yards
No OBY Data Found
Sales History
Sale Date
Type
Price
Book / Page
Other Info
2/7/2025
LAND & BUILDING
190000
2025 / 001997
SPECIAL WARRANTY DEED
1/7/2025
LAND & BUILDING
140000
2025 / 000299
SPECIAL WARRANTY DEED
10/27/2023
LAND & BUILDING
200000
2023 / 018775
SPECIAL WARRANTY DEED
8/17/2016
LAND & BUILDING
129900
2016 / 017755
SPECIAL WARRANTY DEED
7/30/1998
LAND & BUILDING
90000
577 / 2387
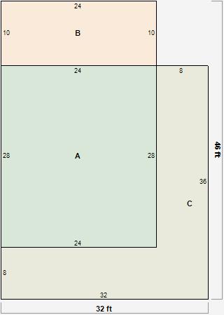
Parcel Sketches
Residential Card 1
A
MAIN
672 square feet
B
1S FR ONE STORY FRAME
240 square feet
C
OFP OPEN FRAME PORCH
480 square feet
Parcel Images
Please note:
this tab is for informational purposes only and may not show all delinquencies, see the Taxes tab for more accurate delinquent taxes due.