Elected Officials
Courts
Departments
Initiatives
Open Government
About
Login / Register
Home
/
Property & Tax Records
/
Property Records
/
Property & Tax Search
/
Parcel Profile
/
Print View
Search for Another Parcel
Parcel Profile
Historical Card
Sketches
Photos
Tax Map
Taxes
Print View
Print This Page
Address: 147 E 6 ST
Parcel: 46006016000500
Parcel Profile
Address
147 | E | 6 | ST
Street Status
PAVED
School District
FORT LEBOEUF SCHOOL
Acreage
0.2953
Classification
R
Land Use Code
SINGLE FAMILY
Legal Description
147 EAST 6 ST 82.5 X 155
Square Feet
1344
Topo
LEVEL
Utility
ALL PUBLIC
Zoning
Please contact your municipal zoning officer
Deed Book
1150
Deed Page
0876
2026 Tax Values
Land Value / Taxable
29,800 / 29,800.00
Building Value / Taxable
55,660 / 55,660.00
Total Value / Taxable
85,460 / 85,460.00
Clean & Green
Inactive
Homestead Status
Active
Farmstead Status
Inactive
Lerta Amount
0
Lerta Expiration Year
0
Residential Data
Card 1
Style
OLD STYLE
Basement
FULL
Year Built
1900
Exterior Wall
ALUMINUM/VINYL
Total Living Area
1344
Full Baths
1
Half Baths
0
Fuel Type
GAS
Heating
CENTRAL A/C
Heating System
FORCED AIR
Stories
2.0
Total Bedrooms
3
Total Family Rooms
0
Total Rooms
7
Fireplaces
0
Other Buildings & Yards
Description
Built
Width
Length
Area
FRAME OR CB DETACHED GARAGE
1992
16
24
384
Sales History
Sale Date
Type
Price
Book / Page
Other Info
6/30/2004
LAND & BUILDING
79000
1150 / 0876
CORRECTIVE DEED
1/31/1997
LAND & BUILDING
66000
481 / 2372
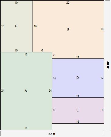
Parcel Sketches
Residential Card 1
A
MAIN
384 square feet
B
UNFIN BSMT BASEMENT UNFINISHED 1S FR ONE STORY FRAME
384 square feet
C
MA_PT CONC/MAS PATIO
160 square feet
D
1S FR ONE STORY FRAME
192 square feet
E
OFP OPEN FRAME PORCH
128 square feet
Parcel Images
Please note:
this tab is for informational purposes only and may not show all delinquencies, see the Taxes tab for more accurate delinquent taxes due.