Elected Officials
Courts
Departments
Initiatives
Open Government
About
Login / Register
Home
/
Property & Tax Records
/
Property Records
/
Property & Tax Search
/
Parcel Profile
/
Print View
Search for Another Parcel
Parcel Profile
Historical Card
Sketches
Photos
Tax Map
Taxes
Print View
Print This Page
Address: 128 E 5 ST
Parcel: 46006016001100
Parcel Profile
Address
128 | E | 5 | ST
Street Status
PAVED
School District
FORT LEBOEUF SCHOOL
Acreage
0.2953
Classification
R
Land Use Code
SINGLE FAMILY
Legal Description
128 EAST 5 ST 82.5 X 155
Square Feet
1624
Topo
LEVEL
Utility
ALL PUBLIC
Zoning
Please contact your municipal zoning officer
Deed Book
2023
Deed Page
012270
2025 Tax Values
Land Value / Taxable
29,800 / 29,800.00
Building Value / Taxable
72,600 / 72,600.00
Total Value / Taxable
102,400 / 102,400.00
Clean & Green
Inactive
Homestead Status
Inactive
Farmstead Status
Inactive
Lerta Amount
0
Lerta Expiration Year
0
Residential Data
Card 1
Style
OLD STYLE
Basement
PART
Year Built
1900
Exterior Wall
ALUMINUM/VINYL
Total Living Area
1624
Full Baths
2
Half Baths
0
Fuel Type
GAS
Heating
CENTRAL
Heating System
FORCED AIR
Stories
2.0
Total Bedrooms
3
Total Family Rooms
0
Total Rooms
8
Fireplaces
2
Other Buildings & Yards
Description
Built
Width
Length
Area
FRAME OR CB DETACHED GARAGE
1979
24
24
576
WOOD DECK
1979
6
24
144
Sales History
Sale Date
Type
Price
Book / Page
Other Info
7/28/2023
LAND & BUILDING
246000
2023 / 012270
SPECIAL WARRANTY DEED
1/29/2018
LAND & BUILDING
145000
2018 / 001743
DEED
1/22/2018
LAND & BUILDING
0
2018 / 001311
DEED
8/14/1968
0
0987 / 0245
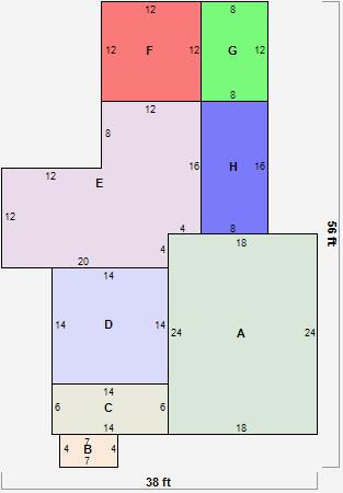
Parcel Sketches
Residential Card 1
A
MAIN
432 square feet
B
OFP OPEN FRAME PORCH
28 square feet
C
EFP ENCL FRAME PORCH
84 square feet
D
1S FR ONE STORY FRAME 1S FR ONE STORY FRAME
196 square feet
E
1S FR ONE STORY FRAME
368 square feet
F
EFP ENCL FRAME PORCH
144 square feet
G
WDDCK WOOD DECKS
96 square feet
H
EFP ENCL FRAME PORCH
128 square feet
Parcel Images