Elected Officials
Courts
Departments
Initiatives
Open Government
About
Login / Register
Home
/
Property & Tax Records
/
Property Records
/
Property & Tax Search
/
Parcel Profile
/
Print View
Search for Another Parcel
Parcel Profile
Historical Card
Sketches
Photos
Tax Map
Taxes
Print View
Print This Page
Address: 28 W 4 ST
Parcel: 46006025000700
Parcel Profile
Address
28 | W | 4 | ST
Street Status
PAVED
School District
FORT LEBOEUF SCHOOL
Acreage
0.3380
Classification
R
Land Use Code
SINGLE FAMILY
Legal Description
28 W 4 ST 95 X 155 | 0.3380 AC
Square Feet
1588
Topo
ROLLING
Utility
ALL PUBLIC
Zoning
Please contact your municipal zoning officer
Deed Book
2019
Deed Page
006050
2026 Tax Values
Land Value / Taxable
30,400 / 30,400.00
Building Value / Taxable
59,930 / 59,930.00
Total Value / Taxable
90,330 / 90,330.00
Clean & Green
Inactive
Homestead Status
Inactive
Farmstead Status
Inactive
Lerta Amount
0
Lerta Expiration Year
0
Residential Data
Card 1
Style
OLD STYLE
Basement
FULL
Year Built
1920
Exterior Wall
ALUMINUM/VINYL
Total Living Area
1588
Full Baths
1
Half Baths
0
Fuel Type
GAS
Heating
CENTRAL
Heating System
FORCED AIR
Stories
2.0
Total Bedrooms
3
Total Family Rooms
0
Total Rooms
7
Fireplaces
0
Other Buildings & Yards
No OBY Data Found
Sales History
Sale Date
Type
Price
Book / Page
Other Info
4/8/2019
LAND & BUILDING
0
2019 / 006050
DEED
12/6/1982
0
1478 / 0521
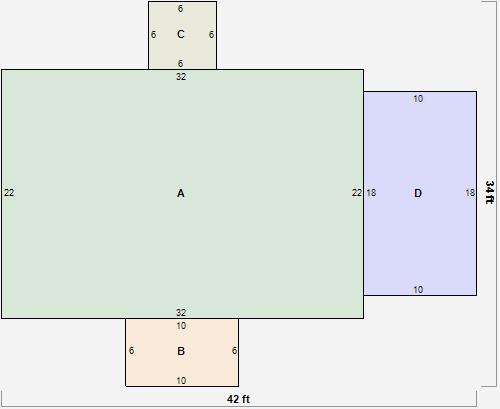
Parcel Sketches
Residential Card 1
A
MAIN
704 square feet
B
OFP OPEN FRAME PORCH
60 square feet
C
OFP OPEN FRAME PORCH
36 square feet
D
1S FR ONE STORY FRAME
180 square feet
Parcel Images
Please note:
this tab is for informational purposes only and may not show all delinquencies, see the Taxes tab for more accurate delinquent taxes due.