Elected Officials
Courts
Departments
Initiatives
Open Government
About
Login / Register
Home
/
Property & Tax Records
/
Property Records
/
Property & Tax Search
/
Parcel Profile
/
Print View
Search for Another Parcel
Parcel Profile
Historical Card
Sketches
Photos
Tax Map
Taxes
Print View
Print This Page
Address: 10 E 4 ST
Parcel: 46006026000700
Parcel Profile
Address
10 | E | 4 | ST
Street Status
PAVED
School District
FORT LEBOEUF SCHOOL
Acreage
0.2953
Classification
R
Land Use Code
SINGLE FAMILY
Legal Description
10 EAST 4 ST 82.5 X 155
Square Feet
2404
Topo
LEVEL
Utility
ALL PUBLIC
Zoning
Please contact your municipal zoning officer
Deed Book
0127
Deed Page
2114
2026 Tax Values
Land Value / Taxable
29,800 / 29,800.00
Building Value / Taxable
52,850 / 52,850.00
Total Value / Taxable
82,650 / 82,650.00
Clean & Green
Inactive
Homestead Status
Active
Farmstead Status
Inactive
Lerta Amount
0
Lerta Expiration Year
0
Residential Data
Card 1
Style
OLD STYLE
Basement
FULL
Year Built
1900
Exterior Wall
COMPOSITION
Total Living Area
2404
Full Baths
2
Half Baths
0
Fuel Type
GAS
Heating
CENTRAL
Heating System
HOT WATER
Stories
2.0
Total Bedrooms
4
Total Family Rooms
0
Total Rooms
9
Fireplaces
0
Other Buildings & Yards
Description
Built
Width
Length
Area
FRAME OR CB DETACHED GARAGE
1940
12
20
240
Sales History
Sale Date
Type
Price
Book / Page
Other Info
6/28/1990
0
0127 / 2114
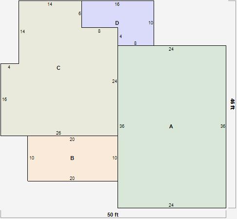
Parcel Sketches
Residential Card 1
A
MAIN
864 square feet
B
EFP ENCL FRAME PORCH
200 square feet
C
1S FR ONE STORY FRAME AT UN ATTIC-UNFINISHED
676 square feet
D
ST_PT STONE OR TILE PATIO
128 square feet
Parcel Images
Please note:
this tab is for informational purposes only and may not show all delinquencies, see the Taxes tab for more accurate delinquent taxes due.