Elected Officials
Courts
Departments
Initiatives
Open Government
About
Login / Register
Home
/
Property & Tax Records
/
Property Records
/
Property & Tax Search
/
Parcel Profile
/
Print View
Search for Another Parcel
Parcel Profile
Historical Card
Sketches
Photos
Tax Map
Taxes
Print View
Print This Page
Address: 141 W 3 ST
Parcel: 46009041000200
Parcel Profile
Address
141 | W | 3 | ST
Street Status
PAVED
School District
FORT LEBOEUF SCHOOL
Acreage
0.2936
Classification
R
Land Use Code
SINGLE FAMILY
Legal Description
141 W 3 ST 82.5 X 155
Square Feet
1232
Topo
ABOVE STREET
Utility
ALL PUBLIC
Zoning
Please contact your municipal zoning officer
Deed Book
0583
Deed Page
0404
2026 Tax Values
Land Value / Taxable
29,800 / 29,800.00
Building Value / Taxable
37,520 / 37,520.00
Total Value / Taxable
67,320 / 67,320.00
Clean & Green
Inactive
Homestead Status
Active
Farmstead Status
Inactive
Lerta Amount
0
Lerta Expiration Year
0
Residential Data
Card 1
Style
OLD STYLE
Basement
PART
Year Built
1860
Exterior Wall
FRAME
Total Living Area
1232
Full Baths
1
Half Baths
0
Fuel Type
GAS
Heating
CENTRAL
Heating System
FORCED AIR
Stories
1.5
Total Bedrooms
3
Total Family Rooms
0
Total Rooms
6
Fireplaces
0
Other Buildings & Yards
No OBY Data Found
Sales History
Sale Date
Type
Price
Book / Page
Other Info
8/26/1998
0
0583 / 0404
10/12/1995
LAND & BUILDING
31000
412 / 1998
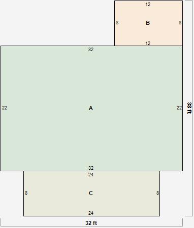
Parcel Sketches
Residential Card 1
A
MAIN
704 square feet
B
EFP ENCL FRAME PORCH
96 square feet
C
OFP OPEN FRAME PORCH
192 square feet
Parcel Images
Please note:
this tab is for informational purposes only and may not show all delinquencies, see the Taxes tab for more accurate delinquent taxes due.