Elected Officials
Courts
Departments
Initiatives
Open Government
About
Login / Register
Home
/
Property & Tax Records
/
Property Records
/
Property & Tax Search
/
Parcel Profile
/
Print View
Search for Another Parcel
Parcel Profile
Historical Card
Sketches
Photos
Tax Map
Taxes
Print View
Print This Page
Address: 214 WALNUT ST
Parcel: 46009041000800
Parcel Profile
Address
214 | WALNUT | ST
Street Status
PAVED
School District
FORT LEBOEUF SCHOOL
Acreage
0.2936
Classification
A
Land Use Code
APARTMENTS 4 - 19 UNITS
Legal Description
214 WALNUT ST 77.5 X 165
Square Feet
5626
Topo
LEVEL
Utility
ALL PUBLIC
Zoning
Please contact your municipal zoning officer
Deed Book
0503
Deed Page
0249
2026 Tax Values
Land Value / Taxable
32,000 / 32,000.00
Building Value / Taxable
133,900 / 133,900.00
Total Value / Taxable
165,900 / 165,900.00
Clean & Green
Inactive
Homestead Status
Inactive
Farmstead Status
Inactive
Lerta Amount
0
Lerta Expiration Year
0
Commercial Data
Card 1
APARTMENTS - GARDEN
Business Living Area - 5626
Year Built - 1850
Improvement Name -
Value - 131480
Other Buildings & Yards
Description
Built
Width
Length
Area
FRAME UTILITY SHED
2003
12
24
288
Sales History
Sale Date
Type
Price
Book / Page
Other Info
6/12/1997
0
0503 / 0249
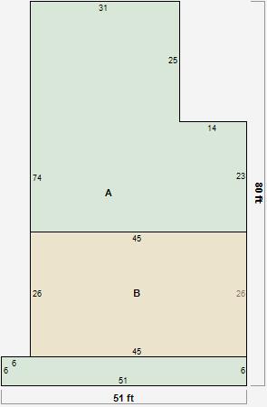
Parcel Sketches
Commercial Card 1
A
MAIN
3286 square feet
B
MAIN
1170 square feet
C
MAIN
1170 square feet
Parcel Images
Please note:
this tab is for informational purposes only and may not show all delinquencies, see the Taxes tab for more accurate delinquent taxes due.