Elected Officials
Courts
Departments
Initiatives
Open Government
About
Login / Register
Home
/
Property & Tax Records
/
Property Records
/
Property & Tax Search
/
Parcel Profile
/
Print View
Search for Another Parcel
Parcel Profile
Historical Card
Sketches
Photos
Tax Map
Taxes
Print View
Print This Page
Address: E 2ND ST
Parcel: 46009045000700
Parcel Profile
Address
0 | E | 2ND | ST
Street Status
PAVED
School District
FORT LEBOEUF SCHOOL
Acreage
0.2936
Classification
R
Land Use Code
MULTIPLE DWELLINGS
Legal Description
E 2ND ST | INL 137 138 82.5X155
Square Feet
2988
Topo
LEVEL
Utility
ALL PUBLIC
Zoning
Please contact your municipal zoning officer
Deed Book
2018
Deed Page
003421
2026 Tax Values
Land Value / Taxable
27,700 / 27,700.00
Building Value / Taxable
42,200 / 42,200.00
Total Value / Taxable
69,900 / 69,900.00
Clean & Green
Inactive
Homestead Status
Inactive
Farmstead Status
Inactive
Lerta Amount
0
Lerta Expiration Year
0
Residential Data
Card 1
Style
BUNGALOW
Basement
FULL
Year Built
1930
Exterior Wall
FRAME
Total Living Area
1040
Full Baths
1
Half Baths
0
Fuel Type
GAS
Heating
CENTRAL
Heating System
FORCED AIR
Stories
1.0
Total Bedrooms
3
Total Family Rooms
0
Total Rooms
6
Fireplaces
0
Card 2
Style
CAPE
Basement
FULL
Year Built
1950
Exterior Wall
ALUMINUM/VINYL
Total Living Area
1091
Full Baths
1
Half Baths
0
Fuel Type
GAS
Heating
CENTRAL
Heating System
FORCED AIR
Stories
1.0
Total Bedrooms
3
Total Family Rooms
0
Total Rooms
5
Fireplaces
0
Card 3
Style
BUNGALOW
Basement
NONE
Year Built
1920
Exterior Wall
ALUMINUM/VINYL
Total Living Area
857
Full Baths
1
Half Baths
0
Fuel Type
GAS
Heating
CENTRAL
Heating System
FORCED AIR
Stories
1.0
Total Bedrooms
2
Total Family Rooms
0
Total Rooms
5
Fireplaces
0
Other Buildings & Yards
No OBY Data Found
Sales History
Sale Date
Type
Price
Book / Page
Other Info
2/21/2018
LAND & BUILDING
0
2018 / 003421
DEED
6/4/1998
0
0565 / 2060
Parcel Sketches
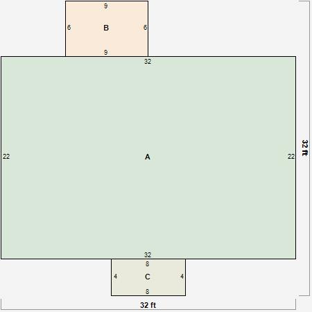
Residential Card 1
A
MAIN
704 square feet
B
1S FR ONE STORY FRAME
54 square feet
C
MA STOOP/TERR MAS STOOP
32 square feet
Residential Card 2
A
MAIN
768 square feet
B
FROVR FRAME OVERHANG
16 square feet
C
WDDCK WOOD DECKS
32 square feet
Residential Card 3
A
MAIN
612 square feet
B
FR UT FRAME UTILITY BUILDING
80 square feet
C
MA STOOP/TERR MAS STOOP
12 square feet
D
FR UT FRAME UTILITY BUILDING
24 square feet
Parcel Images
Please note:
this tab is for informational purposes only and may not show all delinquencies, see the Taxes tab for more accurate delinquent taxes due.