Elected Officials
Courts
Departments
Initiatives
Open Government
About
Login / Register
Home
/
Property & Tax Records
/
Property Records
/
Property & Tax Search
/
Parcel Profile
/
Print View
Search for Another Parcel
Parcel Profile
Historical Card
Sketches
Photos
Tax Map
Taxes
Print View
Print This Page
Address: 252 E 2 ST
Parcel: 46009045000701
Parcel Profile
Address
252 | E | 2 | ST
Street Status
PAVED
School District
FORT LEBOEUF SCHOOL
Acreage
0.2775
Classification
R
Land Use Code
SINGLE FAMILY
Legal Description
252 E 2 ST 78X155
Square Feet
1720
Topo
LEVEL
Utility
ALL PUBLIC
Zoning
Please contact your municipal zoning officer
Deed Book
0441
Deed Page
0944
2026 Tax Values
Land Value / Taxable
29,600 / 29,600.00
Building Value / Taxable
56,500 / 56,500.00
Total Value / Taxable
86,100 / 86,100.00
Clean & Green
Inactive
Homestead Status
Active
Farmstead Status
Inactive
Lerta Amount
0
Lerta Expiration Year
0
Residential Data
Card 1
Style
OLD STYLE
Basement
FULL
Year Built
1900
Exterior Wall
ALUMINUM/VINYL
Total Living Area
1720
Full Baths
1
Half Baths
0
Fuel Type
GAS
Heating
CENTRAL
Heating System
FORCED AIR
Stories
2.0
Total Bedrooms
3
Total Family Rooms
0
Total Rooms
5
Fireplaces
0
Other Buildings & Yards
No OBY Data Found
Sales History
Sale Date
Type
Price
Book / Page
Other Info
5/22/1996
LAND & BUILDING
32000
0441 / 0944
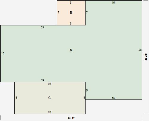
Parcel Sketches
Residential Card 1
A
MAIN
832 square feet
B
1S FR ONE STORY FRAME
56 square feet
C
OFP OPEN FRAME PORCH
180 square feet
Parcel Images