Elected Officials
Courts
Departments
Initiatives
Open Government
About
Login / Register
Home
/
Property & Tax Records
/
Property Records
/
Property & Tax Search
/
Parcel Profile
/
Print View
Search for Another Parcel
Parcel Profile
Historical Card
Sketches
Photos
Tax Map
Taxes
Print View
Print This Page
Address: 236 E 2 ST
Parcel: 46009045000800
Parcel Profile
Address
236 | E | 2 | ST
Street Status
PAVED
School District
FORT LEBOEUF SCHOOL
Acreage
0.3025
Classification
R
Land Use Code
SINGLE FAMILY
Legal Description
236 E 2 ST 85 X 155
Square Feet
1406
Topo
LEVEL
Utility
ALL PUBLIC
Zoning
Please contact your municipal zoning officer
Deed Book
1259
Deed Page
0413
2026 Tax Values
Land Value / Taxable
29,900 / 29,900.00
Building Value / Taxable
85,400 / 85,400.00
Total Value / Taxable
115,300 / 115,300.00
Clean & Green
Inactive
Homestead Status
Active
Farmstead Status
Inactive
Lerta Amount
0
Lerta Expiration Year
0
Residential Data
Card 1
Style
OLD STYLE
Basement
FULL
Year Built
1905
Exterior Wall
BLOCK
Total Living Area
1406
Full Baths
1
Half Baths
0
Fuel Type
GAS
Heating
CENTRAL
Heating System
FORCED AIR
Stories
2.0
Total Bedrooms
3
Total Family Rooms
0
Total Rooms
8
Fireplaces
0
Other Buildings & Yards
Description
Built
Width
Length
Area
FRAME OR CB DETACHED GARAGE
1880
12
22
264
FRAME OR METAL SHED
2012
12
16
192
REINFORCED CONCRETE POOL
2016
16
32
512
CONCRET PATIO, DETACHED
2016
0
0
816
Sales History
Sale Date
Type
Price
Book / Page
Other Info
4/15/1977
0
1259 / 0413
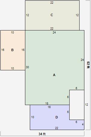
Parcel Sketches
Residential Card 1
A
MAIN
571 square feet
B
OFP OPEN FRAME PORCH
160 square feet
C
1S FR ONE STORY FRAME
264 square feet
D
OFP OPEN FRAME PORCH
184 square feet
Parcel Images
Please note:
this tab is for informational purposes only and may not show all delinquencies, see the Taxes tab for more accurate delinquent taxes due.