Elected Officials
Courts
Departments
Initiatives
Open Government
About
Login / Register
Home
/
Property & Tax Records
/
Property Records
/
Property & Tax Search
/
Parcel Profile
/
Print View
Search for Another Parcel
Parcel Profile
Historical Card
Sketches
Photos
Tax Map
Taxes
Print View
Print This Page
Address: 215 E 2 ST
Parcel: 46009047000200
Parcel Profile
Address
215 | E | 2 | ST
Street Status
PAVED
School District
FORT LEBOEUF SCHOOL
Acreage
0.1779
Classification
R
Land Use Code
SINGLE FAMILY
Legal Description
215 E 2 ST 50 X 155
Square Feet
1477
Topo
LEVEL
Utility
ALL PUBLIC
Zoning
Please contact your municipal zoning officer
Deed Book
0081
Deed Page
1892
2026 Tax Values
Land Value / Taxable
26,800 / 26,800.00
Building Value / Taxable
44,400 / 44,400.00
Total Value / Taxable
71,200 / 71,200.00
Clean & Green
Inactive
Homestead Status
Inactive
Farmstead Status
Inactive
Lerta Amount
0
Lerta Expiration Year
0
Residential Data
Card 1
Style
BUNGALOW
Basement
PART
Year Built
1900
Exterior Wall
FRAME
Total Living Area
1477
Full Baths
1
Half Baths
0
Fuel Type
GAS
Heating
CENTRAL A/C
Heating System
FORCED AIR
Stories
1.0
Total Bedrooms
3
Total Family Rooms
0
Total Rooms
6
Fireplaces
0
Other Buildings & Yards
Description
Built
Width
Length
Area
FRAME UTILITY SHED
2000
8
8
64
FOUR SIDE CLOSED MTL POLE BLDG
2015
36
36
1296
ONE SIDE OPEN MTL POLE BLDG
2015
12
10
120
WOOD DECK
2015
12
10
120
Sales History
Sale Date
Type
Price
Book / Page
Other Info
3/31/1989
0
0081 / 1892
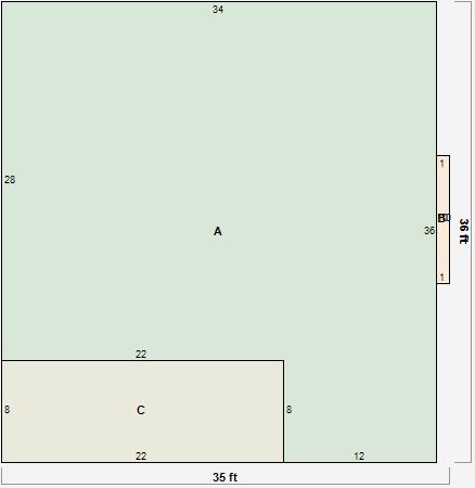
Parcel Sketches
Residential Card 1
A
MAIN
1048 square feet
B
FROVR FRAME OVERHANG
10 square feet
C
OFP OPEN FRAME PORCH
176 square feet
Parcel Images
Please note:
this tab is for informational purposes only and may not show all delinquencies, see the Taxes tab for more accurate delinquent taxes due.