Elected Officials
Courts
Departments
Initiatives
Open Government
About
Login / Register
Home
/
Property & Tax Records
/
Property Records
/
Property & Tax Search
/
Parcel Profile
/
Print View
Search for Another Parcel
Parcel Profile
Historical Card
Sketches
Photos
Tax Map
Taxes
Print View
Print This Page
Address: 219 E 2 ST
Parcel: 46009047000300
Parcel Profile
Address
219 | E | 2 | ST
Street Status
PAVED
School District
FORT LEBOEUF SCHOOL
Acreage
0.4270
Classification
R
Land Use Code
SINGLE FAMILY
Legal Description
219 E 2 ST 120 X 155
Square Feet
1995
Topo
LEVEL
Utility
ALL PUBLIC
Zoning
Please contact your municipal zoning officer
Deed Book
2019
Deed Page
027023
2026 Tax Values
Land Value / Taxable
31,500 / 31,500.00
Building Value / Taxable
26,140 / 26,140.00
Total Value / Taxable
57,640 / 57,640.00
Clean & Green
Inactive
Homestead Status
Inactive
Farmstead Status
Inactive
Lerta Amount
0
Lerta Expiration Year
0
Residential Data
Card 1
Style
OLD STYLE
Basement
PART
Year Built
1880
Exterior Wall
MASONRY & FRAME
Total Living Area
1995
Full Baths
1
Half Baths
0
Fuel Type
GAS
Heating
NONE
Heating System
FORCED AIR
Stories
1.5
Total Bedrooms
3
Total Family Rooms
0
Total Rooms
8
Fireplaces
0
Other Buildings & Yards
Description
Built
Width
Length
Area
FRAME OR CB DETACHED GARAGE
1880
15
25
375
Sales History
Sale Date
Type
Price
Book / Page
Other Info
12/31/2019
LAND & BUILDING
0
2019 / 027023
SPECIAL WARRANTY DEED
3/24/2010
LAND & BUILDING
35050
2010 / 006286
WARRANTY/SURVIVORSHIP DEED
5/29/1980
0
1387 / 0236
Parcel Sketches
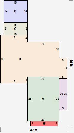
Residential Card 1
A
MAIN
560 square feet
B
1S FR ONE STORY FRAME
1015 square feet
C
EFP ENCL FRAME PORCH
120 square feet
D
WDDCK WOOD DECKS
210 square feet
E
OFP OPEN FRAME PORCH
100 square feet
F
OFP OPEN FRAME PORCH
51 square feet
Parcel Images
Please note:
this tab is for informational purposes only and may not show all delinquencies, see the Taxes tab for more accurate delinquent taxes due.