Elected Officials
Courts
Departments
Initiatives
Open Government
About
Login / Register
Home
/
Property & Tax Records
/
Property Records
/
Property & Tax Search
/
Parcel Profile
/
Print View
Search for Another Parcel
Parcel Profile
Historical Card
Sketches
Photos
Tax Map
Taxes
Print View
Print This Page
Address: 135 E 1ST ST
Parcel: 46009059000400
Parcel Profile
Address
135 | E | 1ST | ST
Street Status
PAVED
School District
FORT LEBOEUF SCHOOL
Acreage
0.2936
Classification
R
Land Use Code
SINGLE FAMILY
Legal Description
135 E 1ST ST 82.5 X 155
Square Feet
1474
Topo
ROLLING
Utility
ALL PUBLIC
Zoning
Please contact your municipal zoning officer
Deed Book
0095
Deed Page
1176
2026 Tax Values
Land Value / Taxable
29,800 / 29,800.00
Building Value / Taxable
57,800 / 57,800.00
Total Value / Taxable
87,600 / 87,600.00
Clean & Green
Inactive
Homestead Status
Active
Farmstead Status
Inactive
Lerta Amount
0
Lerta Expiration Year
0
Residential Data
Card 1
Style
OLD STYLE
Basement
FULL
Year Built
1900
Exterior Wall
ALUMINUM/VINYL
Total Living Area
1474
Full Baths
1
Half Baths
0
Fuel Type
GAS
Heating
CENTRAL
Heating System
FORCED AIR
Stories
1.5
Total Bedrooms
4
Total Family Rooms
1
Total Rooms
9
Fireplaces
0
Other Buildings & Yards
Description
Built
Width
Length
Area
FRAME OR CB DETACHED GARAGE
1940
16
22
352
FRAME UTILITY SHED
2000
0
0
80
ONE SIDE OPEN WD POLE BLDG
2020
0
0
320
Sales History
Sale Date
Type
Price
Book / Page
Other Info
8/11/1989
0
0095 / 1176
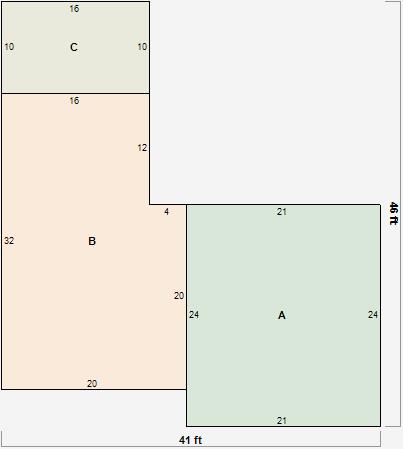
Parcel Sketches
Residential Card 1
A
MAIN
504 square feet
B
UNFIN BSMT BASEMENT UNFINISHED 1S FR ONE STORY FRAME
592 square feet
C
OFP OPEN FRAME PORCH
160 square feet
Parcel Images
Please note:
this tab is for informational purposes only and may not show all delinquencies, see the Taxes tab for more accurate delinquent taxes due.