Elected Officials
Courts
Departments
Initiatives
Open Government
About
Login / Register
Home
/
Property & Tax Records
/
Property Records
/
Property & Tax Search
/
Parcel Profile
/
Print View
Search for Another Parcel
Parcel Profile
Historical Card
Sketches
Photos
Tax Map
Taxes
Print View
Print This Page
Address: 226 S HIGH ST
Parcel: 46009067000800
Parcel Profile
Address
226 | S | HIGH | ST
Street Status
UNPAVED
School District
FORT LEBOEUF SCHOOL
Acreage
0.3099
Classification
R
Land Use Code
SINGLE FAMILY
Legal Description
226 S HIGH ST 90 X 150 IRR
Square Feet
1750
Topo
ABOVE STREET | ROLLING
Utility
ALL PUBLIC
Zoning
Please contact your municipal zoning officer
Deed Book
2024
Deed Page
004340
2026 Tax Values
Land Value / Taxable
30,000 / 30,000.00
Building Value / Taxable
44,800 / 44,800.00
Total Value / Taxable
74,800 / 74,800.00
Clean & Green
Inactive
Homestead Status
Active
Farmstead Status
Inactive
Lerta Amount
0
Lerta Expiration Year
0
Residential Data
Card 1
Style
RANCH
Basement
CRAWL
Year Built
1912
Exterior Wall
ALUMINUM/VINYL
Total Living Area
1750
Full Baths
1
Half Baths
0
Fuel Type
PROPANE
Heating
CENTRAL
Heating System
FORCED AIR
Stories
1.0
Total Bedrooms
3
Total Family Rooms
0
Total Rooms
6
Fireplaces
1
Other Buildings & Yards
Description
Built
Width
Length
Area
FRAME UTILITY SHED
1997
11
16
176
WOOD DECK
1997
16
20
320
Sales History
Sale Date
Type
Price
Book / Page
Other Info
3/22/2024
LAND & BUILDING
234900
2024 / 004340
SPECIAL WARRANTY DEED
8/4/2023
LAND & BUILDING
225900
2023 / 012829
SPECIAL WARRANTY DEED
5/3/2010
LAND & BUILDING
14900
2010 / 009860
SPECIAL WARRANTY DEED
12/16/2009
LAND & BUILDING
4595
1609 / 1045
SHERIFF'S DED
11/4/2004
LAND & BUILDING
1
1187 / 0563
QUIT CLAIM DEED
10/2/2001
LAND & BUILDING
1
815 / 1897
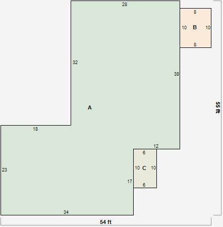
Parcel Sketches
Residential Card 1
A
MAIN
1750 square feet
B
WDDCK WOOD DECKS
80 square feet
C
EFP ENCL FRAME PORCH
60 square feet
Parcel Images
Please note:
this tab is for informational purposes only and may not show all delinquencies, see the Taxes tab for more accurate delinquent taxes due.