Elected Officials
Courts
Departments
Initiatives
Open Government
About
Login / Register
Home
/
Property & Tax Records
/
Property Records
/
Property & Tax Search
/
Parcel Profile
/
Print View
Search for Another Parcel
Parcel Profile
Historical Card
Sketches
Photos
Tax Map
Taxes
Print View
Print This Page
Address: 10532 ROUTE 97
Parcel: 47001006000401
Parcel Profile
Address
10532 | ROUTE 97
Street Status
PAVED
School District
FORT LEBOEUF SCHOOL
Acreage
2.1400
Classification
R
Land Use Code
DWELLING W/ COMMERCIAL USE PRIMARY RES
Legal Description
10532 ROUTTE 97 2.14 AC
Square Feet
2344
Topo
LEVEL
Utility
WELL | SEPTIC
Zoning
Please contact your municipal zoning officer
Deed Book
0618
Deed Page
0294
2026 Tax Values
Land Value / Taxable
46,000 / 46,000.00
Building Value / Taxable
159,100 / 159,100.00
Total Value / Taxable
205,100 / 205,100.00
Clean & Green
Inactive
Homestead Status
Active
Farmstead Status
Inactive
Lerta Amount
0
Lerta Expiration Year
0
Residential Data
Card 1
Style
OLD STYLE
Basement
FULL
Year Built
1900
Exterior Wall
FRAME
Total Living Area
2344
Full Baths
2
Half Baths
0
Fuel Type
OIL
Heating
CENTRAL
Heating System
FORCED AIR
Stories
2.0
Total Bedrooms
4
Total Family Rooms
0
Total Rooms
8
Fireplaces
0
Other Buildings & Yards
Description
Built
Width
Length
Area
BANK BARN
1910
46
61
2806
FRAME UTILITY SHED
1910
40
8
320
FRAME UTILITY SHED
1910
14
30
420
GRANARY
1920
18
24
432
FRAME OR CB DETACHED GARAGE
1980
34
34
1156
1S LEAN TO
2011
0
0
840
Sales History
Sale Date
Type
Price
Book / Page
Other Info
2/16/1999
LAND & BUILDING
120000
0618 / 0294
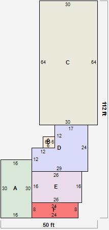
Parcel Sketches
Residential Card 1
A
MAIN
480 square feet
B
WDDCK WOOD DECKS
36 square feet
C
FR UT FRAME UTILITY BUILDING
1920 square feet
D
1S FR ONE STORY FRAME
552 square feet
E
UNFIN BSMT BASEMENT UNFINISHED 1S FR ONE STORY FRAME 1S FR ONE STORY FRAME
416 square feet
F
OFP OPEN FRAME PORCH
192 square feet
Parcel Images
Please note:
this tab is for informational purposes only and may not show all delinquencies, see the Taxes tab for more accurate delinquent taxes due.