Elected Officials
Courts
Departments
Initiatives
Open Government
About
Login / Register
Home
/
Property & Tax Records
/
Property Records
/
Property & Tax Search
/
Parcel Profile
/
Print View
Search for Another Parcel
Parcel Profile
Historical Card
Sketches
Photos
Tax Map
Taxes
Print View
Print This Page
Address: 11584 DONATION RD
Parcel: 47003009000805
Parcel Profile
Address
11584 | DONATION | RD
Street Status
PAVED
School District
FORT LEBOEUF SCHOOL
Acreage
1.6200
Classification
R
Land Use Code
SINGLE FAMILY
Legal Description
11584 DONATION RD 1.62 AC
Square Feet
899
Topo
ROLLING
Utility
WELL | SEPTIC
Zoning
Please contact your municipal zoning officer
Deed Book
2019
Deed Page
023378
2025 Tax Values
Land Value / Taxable
30,100 / 30,100.00
Building Value / Taxable
40,900 / 40,900.00
Total Value / Taxable
71,000 / 71,000.00
Clean & Green
Inactive
Homestead Status
Active
Farmstead Status
Inactive
Lerta Amount
0
Lerta Expiration Year
0
Residential Data
Card 1
Style
BUNGALOW
Basement
FULL
Year Built
1920
Exterior Wall
ALUMINUM/VINYL
Total Living Area
899
Full Baths
1
Half Baths
0
Fuel Type
PROPANE
Heating
CENTRAL
Heating System
FORCED AIR
Stories
1.0
Total Bedrooms
2
Total Family Rooms
0
Total Rooms
4
Fireplaces
0
Other Buildings & Yards
Description
Built
Width
Length
Area
FRAME UTILITY SHED
1930
10
13
130
FRAME OR CB DETACHED GARAGE
1930
25
25
625
Sales History
Sale Date
Type
Price
Book / Page
Other Info
11/13/2019
LAND & BUILDING
57000
2019 / 023378
SPECIAL WARRANTY DEED
12/6/2006
LAND & BUILDING
0
1381 / 0166
WARRANTY/SURVIVORSHIP DEED
11/12/1993
LAND & BUILDING
0
0303 / 0121
11/12/1993
0
0303 / 0121
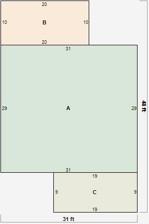
Parcel Sketches
Residential Card 1
A
MAIN
899 square feet
B
EFP ENCL FRAME PORCH
200 square feet
C
OFP OPEN FRAME PORCH
171 square feet
Parcel Images