Elected Officials
Courts
Departments
Initiatives
Open Government
About
Login / Register
Home
/
Property & Tax Records
/
Property Records
/
Property & Tax Search
/
Parcel Profile
/
Print View
Search for Another Parcel
Parcel Profile
Historical Card
Sketches
Photos
Tax Map
Taxes
Print View
Print This Page
Address: 3989 LOWE RD
Parcel: 47005019000400
Parcel Profile
Address
3989 | LOWE | RD
Street Status
UNPAVED
School District
FORT LEBOEUF SCHOOL
Acreage
1.6500
Classification
R
Land Use Code
SINGLE FAMILY
Legal Description
3989 LOWE RD 1.65 AC
Square Feet
1440
Topo
ROLLING
Utility
WELL | SEPTIC
Zoning
Please contact your municipal zoning officer
Deed Book
2011
Deed Page
014792
2026 Tax Values
Land Value / Taxable
30,200 / 30,200.00
Building Value / Taxable
42,100 / 42,100.00
Total Value / Taxable
72,300 / 72,300.00
Clean & Green
Inactive
Homestead Status
Active
Farmstead Status
Inactive
Lerta Amount
0
Lerta Expiration Year
0
Residential Data
Card 1
Style
BUNGALOW
Basement
PART
Year Built
1900
Exterior Wall
FRAME
Total Living Area
1440
Full Baths
1
Half Baths
0
Fuel Type
OIL
Heating
CENTRAL
Heating System
FORCED AIR
Stories
1.0
Total Bedrooms
2
Total Family Rooms
0
Total Rooms
5
Fireplaces
0
Other Buildings & Yards
No OBY Data Found
Sales History
Sale Date
Type
Price
Book / Page
Other Info
6/30/2011
LAND & BUILDING
37700
2011 / 014792
SPECIAL WARRANTY DEED
11/5/2010
LAND & BUILDING
1440
2010 / 027793
SHERIFF'S DED
8/27/2009
LAND & BUILDING
0
1586 / 1256
DEED
4/10/2006
LAND & BUILDING
0
1318 / 1617
WARRANTY/SURVIVORSHIP DEED
12/11/1997
LAND & BUILDING
26500
0533 / 0806
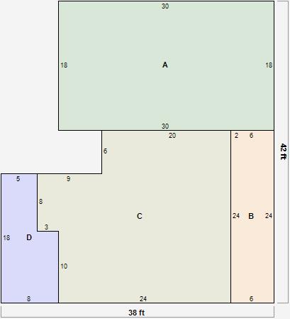
Parcel Sketches
Residential Card 1
A
MAIN
540 square feet
B
OFP OPEN FRAME PORCH
144 square feet
C
1S FR ONE STORY FRAME
564 square feet
D
1S FR ONE STORY FRAME
120 square feet
Parcel Images
Please note:
this tab is for informational purposes only and may not show all delinquencies, see the Taxes tab for more accurate delinquent taxes due.