Elected Officials
Courts
Departments
Initiatives
Open Government
About
Login / Register
Home
/
Property & Tax Records
/
Property Records
/
Property & Tax Search
/
Parcel Profile
/
Print View
Search for Another Parcel
Parcel Profile
Historical Card
Sketches
Photos
Tax Map
Taxes
Print View
Print This Page
Address: 10247 SHARP RD
Parcel: 47011005000100
Parcel Profile
Address
10247 | SHARP | RD
Street Status
PAVED
School District
FORT LEBOEUF SCHOOL
Acreage
2.2300
Classification
R
Land Use Code
SINGLE FAMILY
Legal Description
10247 SHARP RD 2.23 AC CAL
Square Feet
1704
Topo
ROLLING
Utility
GAS | WELL | SEPTIC
Zoning
Please contact your municipal zoning officer
Deed Book
0868
Deed Page
0186
2026 Tax Values
Land Value / Taxable
28,800 / 28,800.00
Building Value / Taxable
77,200 / 77,200.00
Total Value / Taxable
106,000 / 106,000.00
Clean & Green
Inactive
Homestead Status
Active
Farmstead Status
Inactive
Lerta Amount
0
Lerta Expiration Year
0
Residential Data
Card 1
Style
OLD STYLE
Basement
FULL
Year Built
1928
Exterior Wall
ALUMINUM/VINYL
Total Living Area
1704
Full Baths
1
Half Baths
0
Fuel Type
GAS
Heating
CENTRAL
Heating System
FORCED AIR
Stories
1.5
Total Bedrooms
2
Total Family Rooms
0
Total Rooms
5
Fireplaces
0
Other Buildings & Yards
Description
Built
Width
Length
Area
FRAME OR CB DETACHED GARAGE
1980
34
28
952
CANOPY
2002
10
28
280
Sales History
Sale Date
Type
Price
Book / Page
Other Info
4/4/2002
LAND & BUILDING
0
0868 / 0186
4/3/2002
LAND & BUILDING
100000
867 / 1587
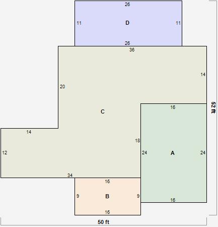
Parcel Sketches
Residential Card 1
A
MAIN
384 square feet
B
OFP OPEN FRAME PORCH
144 square feet
C
1S FR ONE STORY FRAME
1032 square feet
D
WDDCK WOOD DECKS
286 square feet
Parcel Images
Please note:
this tab is for informational purposes only and may not show all delinquencies, see the Taxes tab for more accurate delinquent taxes due.