Elected Officials
Courts
Departments
Initiatives
Open Government
About
Login / Register
Home
/
Property & Tax Records
/
Property Records
/
Property & Tax Search
/
Parcel Profile
/
Print View
Search for Another Parcel
Parcel Profile
Historical Card
Sketches
Photos
Tax Map
Taxes
Print View
Print This Page
Address: 10726 ROUTE 19 N
Parcel: 47011005001300
Parcel Profile
Address
10726 | ROUTE 19 N
Street Status
PAVED
School District
FORT LEBOEUF SCHOOL
Acreage
3.0000
Classification
R
Land Use Code
SINGLE FAMILY
Legal Description
10726 ROUTE 19 3 AC
Square Feet
1533
Topo
LEVEL
Utility
GAS | WELL | SEPTIC
Zoning
Please contact your municipal zoning officer
Deed Book
1055
Deed Page
0401
2026 Tax Values
Land Value / Taxable
34,400 / 34,400.00
Building Value / Taxable
71,700 / 71,700.00
Total Value / Taxable
106,100 / 106,100.00
Clean & Green
Inactive
Homestead Status
Active
Farmstead Status
Inactive
Lerta Amount
0
Lerta Expiration Year
0
Residential Data
Card 1
Style
CONVENTIONAL
Basement
FULL
Year Built
1940
Exterior Wall
ALUMINUM/VINYL
Total Living Area
1533
Full Baths
1
Half Baths
0
Fuel Type
GAS
Heating
CENTRAL A/C
Heating System
FORCED AIR
Stories
1.5
Total Bedrooms
3
Total Family Rooms
0
Total Rooms
6
Fireplaces
0
Other Buildings & Yards
Description
Built
Width
Length
Area
FRAME OR CB DETACHED GARAGE
0
24
24
576
Sales History
Sale Date
Type
Price
Book / Page
Other Info
10/26/1971
0
1055 / 0401
10/26/1971
LAND & BUILDING
0
1055 / 0401
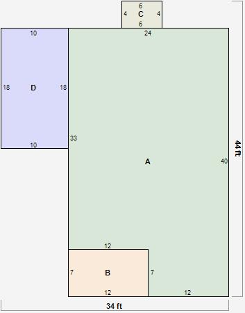
Parcel Sketches
Residential Card 1
A
MAIN
876 square feet
B
OFP OPEN FRAME PORCH
84 square feet
C
EFP ENCL FRAME PORCH
24 square feet
D
WDDCK WOOD DECKS
180 square feet
Parcel Images