Elected Officials
Courts
Departments
Initiatives
Open Government
About
Login / Register
Home
/
Property & Tax Records
/
Property Records
/
Property & Tax Search
/
Parcel Profile
/
Print View
Search for Another Parcel
Parcel Profile
Historical Card
Sketches
Photos
Tax Map
Taxes
Print View
Print This Page
Address: 798 SEDGWICK RD
Parcel: 47017037000600
Parcel Profile
Address
798 | SEDGWICK | RD
Street Status
SEMI IMPROVED
School District
FORT LEBOEUF SCHOOL
Acreage
2.5700
Classification
R
Land Use Code
SINGLE FAMILY
Legal Description
798 SEDGWICK RD 2.57 AC
Square Feet
1568
Topo
LEVEL
Utility
WELL | SEPTIC
Zoning
Please contact your municipal zoning officer
Deed Book
1057
Deed Page
2064
2026 Tax Values
Land Value / Taxable
33,000 / 33,000.00
Building Value / Taxable
61,390 / 61,390.00
Total Value / Taxable
94,390 / 94,390.00
Clean & Green
Inactive
Homestead Status
Inactive
Farmstead Status
Inactive
Lerta Amount
0
Lerta Expiration Year
0
Residential Data
Card 1
Style
OLD STYLE
Basement
FULL
Year Built
1920
Exterior Wall
ALUMINUM/VINYL
Total Living Area
1568
Full Baths
2
Half Baths
0
Fuel Type
OIL
Heating
CENTRAL
Heating System
FORCED AIR
Stories
2.0
Total Bedrooms
4
Total Family Rooms
0
Total Rooms
7
Fireplaces
0
Other Buildings & Yards
Description
Built
Width
Length
Area
FOUR SIDE CLOSED MTL POLE BLDG
1980
40
50
2000
FLAT BARN
1920
16
24
384
FLAT BARN
1987
20
40
800
Sales History
Sale Date
Type
Price
Book / Page
Other Info
8/29/2003
LAND & BUILDING
50000
1057 / 2064
SPECIAL WARRANTY DEED
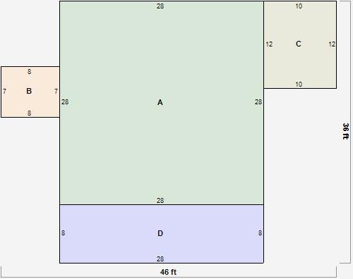
Parcel Sketches
Residential Card 1
A
MAIN
784 square feet
B
EFP ENCL FRAME PORCH
56 square feet
C
EFP ENCL FRAME PORCH
120 square feet
D
MA_PT CONC/MAS PATIO
224 square feet
Parcel Images
Please note:
this tab is for informational purposes only and may not show all delinquencies, see the Taxes tab for more accurate delinquent taxes due.