Elected Officials
Courts
Departments
Initiatives
Open Government
About
Login / Register
Home
/
Property & Tax Records
/
Property Records
/
Property & Tax Search
/
Parcel Profile
/
Print View
Search for Another Parcel
Parcel Profile
Historical Card
Sketches
Photos
Tax Map
Taxes
Print View
Print This Page
Address: 13137 SCOTT RD
Parcel: 47020045002400
Parcel Profile
Address
13137 | SCOTT | RD
Street Status
UNPAVED
School District
FORT LEBOEUF SCHOOL
Acreage
1.9000
Classification
R
Land Use Code
SINGLE FAMILY
Legal Description
13137 SCOTT RD 1.9 AC
Square Feet
1539
Topo
ROLLING
Utility
WELL | SEPTIC
Zoning
Please contact your municipal zoning officer
Deed Book
2013
Deed Page
004784
2026 Tax Values
Land Value / Taxable
30,900 / 30,900.00
Building Value / Taxable
68,000 / 68,000.00
Total Value / Taxable
98,900 / 98,900.00
Clean & Green
Inactive
Homestead Status
Inactive
Farmstead Status
Inactive
Lerta Amount
0
Lerta Expiration Year
0
Residential Data
Card 1
Style
RANCH
Basement
FULL
Year Built
1969
Exterior Wall
BRICK
Total Living Area
1539
Full Baths
1
Half Baths
0
Fuel Type
GAS
Heating
CENTRAL
Heating System
FORCED AIR
Stories
1.0
Total Bedrooms
3
Total Family Rooms
0
Total Rooms
6
Fireplaces
0
Other Buildings & Yards
Description
Built
Width
Length
Area
FRAME OR CB DETACHED GARAGE
1950
32
44
1408
FRAME UTILITY SHED
2011
12
20
240
Sales History
Sale Date
Type
Price
Book / Page
Other Info
3/1/2013
LAND & BUILDING
0
2013 / 004784
SPECIAL WARRANTY DEED
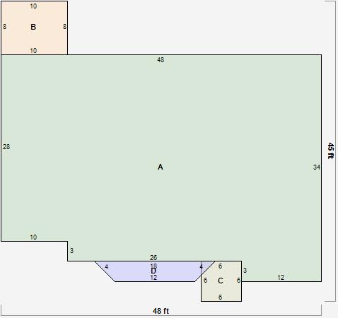
Parcel Sketches
Residential Card 1
A
MAIN
1494 square feet
B
EMP ENCL MASONRY PORCH
80 square feet
C
EFP ENCL FRAME PORCH
36 square feet
D
FRBAY FRAME BAY
45 square feet
Parcel Images
Please note:
this tab is for informational purposes only and may not show all delinquencies, see the Taxes tab for more accurate delinquent taxes due.