Elected Officials
Courts
Departments
Initiatives
Open Government
About
Login / Register
Home
/
Property & Tax Records
/
Property Records
/
Property & Tax Search
/
Parcel Profile
/
Print View
Search for Another Parcel
Parcel Profile
Historical Card
Sketches
Photos
Tax Map
Taxes
Print View
Print This Page
Address: 665 DEPOT RD
Parcel: 47024039000200
Parcel Profile
Address
665 | DEPOT | RD
Street Status
PRIVATE
School District
FORT LEBOEUF SCHOOL
Acreage
7.8900
Classification
R
Land Use Code
SINGLE FAMILY
Legal Description
665 DEPOT RD 7.89 AC CAL
Square Feet
1127
Topo
ABOVE STREET | ROLLING
Utility
GAS | WELL | SEPTIC
Zoning
Please contact your municipal zoning officer
Deed Book
2019
Deed Page
027034
2026 Tax Values
Land Value / Taxable
34,800 / 34,800.00
Building Value / Taxable
41,300 / 41,300.00
Total Value / Taxable
76,100 / 76,100.00
Clean & Green
Inactive
Homestead Status
Inactive
Farmstead Status
Inactive
Lerta Amount
0
Lerta Expiration Year
0
Residential Data
Card 1
Style
RANCH
Basement
PART
Year Built
1920
Exterior Wall
ALUMINUM/VINYL
Total Living Area
1127
Full Baths
1
Half Baths
0
Fuel Type
GAS
Heating
CENTRAL
Heating System
FORCED AIR
Stories
1.0
Total Bedrooms
2
Total Family Rooms
1
Total Rooms
6
Fireplaces
1
Other Buildings & Yards
No OBY Data Found
Sales History
Sale Date
Type
Price
Book / Page
Other Info
12/31/2019
LAND & BUILDING
0
2019 / 027034
SPECIAL WARRANTY DEED
6/29/2012
LAND & BUILDING
60000
2012 / 017302
SPECIAL WARRANTY DEED
5/14/1979
0
1348 / 0234
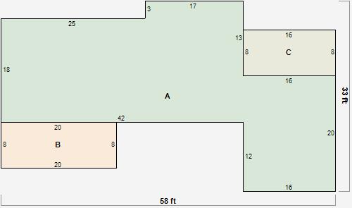
Parcel Sketches
Residential Card 1
A
MAIN
1127 square feet
B
EFP ENCL FRAME PORCH
160 square feet
C
FR UT FRAME UTILITY BUILDING
128 square feet
Parcel Images
Please note:
this tab is for informational purposes only and may not show all delinquencies, see the Taxes tab for more accurate delinquent taxes due.